前言
首先感谢您购买SK600系列变频器,SK600系列变频器是一款通用高性能电流矢量变频器,可实现异步电机和永磁同步电机控制,具有用户可编程功能及后台监控软件、通讯总线功能,支持多种PG卡等,功能强大。可用于纺织、造纸、拉丝、机床、包装、食品、风机、水泵及各种自动化生产设备的驱动。

本说明书介绍了SK600系列变频器的功能特性及使用方法,包括产品选型、参数设置、运行调试、维护检查等,使用前请务必认真阅读本说明书。设备配套厂家请将此说明书随设备发送给终端用户,方便后续的使用参考。
产品简介
SK600变频器主要在以下几个方面有明显提升:
- 丰富的电压等级:支持单相220V、三相220V、三相380V、三相480V、三相690V、三相1140V六个电压等级。
- 丰富的电机种类支持:支持三相交流异步电机、三相交流永磁同步电机的矢量控制。
- 丰富的控制方式:有速度传感器矢量控制、无速度传感器矢量控制、V/F控制外,还支持V/F分离控制。
- 丰富的现场总线:支持Modbus - RTU、Profibus - DP、CANlink、CANopen四种总线。
- 丰富的编码器类型:支持差分编码器、开路集电极编码器、旋转变压器、UVW编码器等。
- 全新的无速度传感器矢量控制算法:全新的SVC(无速度传感器矢量控制),带来更好的低速稳定性,更强的低频带载能力,而且支持SVC的转矩控制。
- 支持用户可编程:通过PC60PC1用户可编程卡,用户可实现二次开发功能,可以用梯形图等方式进行程序编写。
- 强大的后台软件:后台软件可实现变频器参数的上传、下载、实时示波器等功能。
- 更丰富的功能:
| 功能 | 描述 |
|---|---|
| 虚拟输入输出IO | 可灵活实现各种简单的逻辑功能 |
| 电机过热保护 | 选用PC60IO1扩展卡后,AI3可接收电机温度传感器输入(PT100、PT1000)来实现对电机过热保护 |
| 快速限流 | 避免变频器频繁出现过流故障 |
| 多电机切换 | 具备四组电机参数,可实现四个电机切换控制 |
| 恢复用户参数 | 该功能支持客户自行保存或恢复自己设定的参数 |
| 更高精度的AIAO | 通过出厂校正(亦可现场校正),AIAO精度可达20mv以内 |
| 用户定制参数显示 | 用户可定制需要显示的功能参数 |
| 用户变更参数显示 | 用户可查看经过修改后的功能参数 |
| 故障处理方式可选 | 用户可根据需要,确定特定故障发生后,变频器的动作方式:自由停机、减速停机、继续运行。也可选择继续运行时的频率。 |
| PID参数切换 | 具备两组PID参数,可通过端子切换或根据偏差自动切换 |
| PID反馈丢失检测 | 设定PID反馈丢失检测值,实现对PID运行时的保护 |
| DIDO正反逻辑 | 用户自主设定DIDO的正反逻辑 |
| DIDO响应延迟 | 用户自主设定DIDO响应延迟时间 |
| 瞬停不停 | 保证变频器在瞬间停电或电压突然降低时维持变频器短时间内继续运行 |
| 定时运行 | 支持最大6500分钟定时运行 |
| 用户可编程 | 外接可编程卡实现用户二次开发 |
注意事项
- 为说明产品的细节部分,本说明书中的图例有时为卸下外罩或安全遮盖物的状态。使用本产品时,请务必按规定装好外壳或遮盖物,并按照说明书的内容进行操作。
- 本使用说明书中的图例仅为了说明,可能会与您订购的产品有所不同。
- 本公司致力于产品的不断改善,产品功能会不断升级,所提供的资料如有变更,恕不另行通知。
- 如果你使用中有问题,请与本公司各区域代理商联系,或直接与本公司客户服务中心联系。
开箱验货
在开箱时,请认真确认:
- 本机铭牌的型号及变频器额定值是否与您的订货一致。箱内含您订购的机器、产品合格证、用户操作手册及保修单。
- 产品在运输过程中是否有破损现象;若发现有某种遗漏或损坏,请速与本公司或您的供货商联系解决。
初次使用
对于初次使用本产品的用户,应先认真阅读本手册。若对一些功能及性能方面有所疑惑,请咨询我公司的技术支持人员,以获得帮助,对正确使用本产品有利。
与外围设备的连接

请使用在变频器允许规格内的三相交流电源。由于在电源投入时,变频器会流入很大的冲击电流,故需注意断路器的选定。为了确保安全,请不要频繁用电磁接触器来启动和停止变频器,这样将降低变频器的使用寿命。
| 设备 | 说明 |
|---|---|
| 无熔丝断路器(MCCB)或漏电断路器 | 用于保护电路,防止过载、短路等故障 |
| 电磁接触器 | 不建议频繁用于启动和停止变频器 |
| 交流电抗器 | 抑制高次谐波,改善功率因素 |
| 制动电阻(可选) | 消耗电机再生能量 |
| 制动单元(或能量回馈单元)(可选) | 充分发挥变频器的再生能力,请根据需要使用 |
| 直流电抗器(选配) | 改善电源特性 |
| 接地 | 为了防止触电,电机和变频器必须良好地接地 |
| 输出侧噪音滤波器 | 减少输出侧的电磁干扰 |
| 电机 | 变频器驱动的设备 |
注意
1.不要在变频器的输出侧安装电容器或浪涌抑制器,这将导致变频器的故障或电容和浪涌抑制器的损坏。
2.变频器的输入 / 输出 (主回路) 包含有谐波成分,可能干扰变频器附件的通讯设备。因此,安装抗干扰滤波器,使干扰降至最小。
3.外围设备的详细情况及选件参照外围设备的选型手册。
1.安全信息及注意事项
1.1安全定义
在本手册中,安全注意事项分以下两类:
注意
由于没有按要求操作造成的危险,可能导致中度伤害或轻伤,及设备损坏的情况
危险
由于没有按要求操作造成的危险,可能导致重伤,甚至死亡的情况;
请用户在安装、调试和维修本系统时,仔细阅读本章,务必按照本章内容所要求的安全注意事项进行操作。如出现因违规操作而造成的任何伤害和损失均与本公司无关。
1.2 安全事项
| 使用阶段 | 安全等级 | 事项 |
|---|---|---|
| 安装前 | 危险 | ● 开箱时发现控制系统进水、部件缺少或有部件损坏时,请不要安装!● 装箱单与实物名称不符时,请不要安装! |
| 注意 | ● 搬运时应该轻抬轻放,否则有损害设备的危险!● 有损伤的驱动器或缺件的变频器请不要使用。有受伤的危险!● 不要用手触及控制系统的元器件,否则有静电损坏的危险! | |
| 安装时 | 危险 | ● 请安装在金属等阻燃的物体上;远离可燃物。否则可能引起火警!● 不可随意拧动设备元件的固定螺栓,特别是带有红色标记的螺栓! |
| 注意 | ● 不能让导线头或螺钉掉入驱动器中。否则引起驱动器损坏!● 请将驱动器安装在震动少,避免阳光直射的地方。● 两个以上变频器置于同一个柜子中时,请注意安装位置,保证散热效果。 | |
| 配线时 | 危险 | ● 必须遵守本手册的指导,由专业电气工程人员施工,否则会出现意想不到的危险!● 变频器和电源之间必须有断路器隔开,否则可能发生火警!● 接线前请确认电源处于零能量状态,否则有触电的危险!● 请按标准对变频器进行正确规范接地,否则有触电危险! |
| 注意 | ● 绝不能将输入电源连接到变频器的输出端子(U、V、W)上。注意接线端子的标记,不要接错线!否则引起变频器损坏!● 所用导线线径请参考手册的建议。否则可能发生事故!● 绝不能将制动电阻直接接于直流母线( + )、( - )端子之间。否则引起火警!● 编码器必须使用屏蔽线,且屏蔽层必须保证单端可靠接地! | |
| 上电前 | 危险 | ● 请确认输入电源的电压等级是否和变频器的额定电压等级一致;电源输入端子(R、S、T)和输出端子(U、V、W)上的接线位置是否正确;并注意检查与驱动器相连接的外围电路中是否有短路现象,所连线路是否紧固,否则引起驱动器损坏!● 变频器的任何部分无须进行耐压试验,出厂时产品已作过此项测试。否则引起事故! |
| 注意 | ● 变频器必须盖好盖板后才能上电。否则可能引起触电!● 所有外围配件的接线必须遵守本手册的指导,按照本手册所提供电路连接方法正确接线。否则引起事故! | |
| 上电后 | 危险 | ● 上电后不要打开盖板。否则有触电的危险!● 不要用湿手触摸驱动器及周边电路。否则有触电危险!● 不要触摸变频器的任何输入输出端子。否则有触电危险!● 上电初,变频器自动对外部强电回路进行安全检测,此时,绝不能触摸驱动器U、V、W接线端子或电机接线端子,否则有触电危险! |
| 注意 | ● 若需要进行参数辨识,请注意电机旋转中伤人的危险。否则可能引起事故!● 请勿随意更改变频器厂家参数。否则可能造成设备的损害! | |
| 运行中 | 危险 | ● 请勿触摸散热风扇及放电电阻以试探温度。否则可能引起灼伤!● 非专业技术人员请勿在运行中检测信号。否则可能引起人身伤害或设备损坏! |
| 注意 | ● 变频器运行中,应避免有东西掉入设备中。否则引起设备损坏!● 不要采用接触器通断的方法来控制变频器的启停。否则引起设备损坏! | |
| 保养时 | 危险 | ● 没有经过专业培训的人员请勿对变频器实施维修及保养。否则造成人身伤害或设备损坏!● 请勿带电对设备进行维修及保养。否则有触电危险!● 确认将变频器的输入电源断电10分钟后,才能对驱动器实施保养及维修。否则电容上的残余电荷对人会造成伤害!● 所有可插拔插件必须在断电情况下插拔!● 更换变频器后必须进行参数的设置和检查。 |
1.3 注意事项
- 电机绝缘检查:电机在首次使用、长时间放置后的再使用之前及定期检查时,应做电机绝缘检查,防止因电机绕组的绝缘失效而损坏变频器。绝缘检查时一定要将电机连线从变频器分开,建议采用500V电压型兆欧表,应保证测得绝缘电阻不小于5MΩ。
- 电机的热保护:若选用电机与变频器额定容量不匹配时,特别是变频器额定功率大于电机额定功率时,务必调整变频器内电机保护相关参数值或在电机前加装热继电器以对电机保护。
- 工频以上运行:本变频器可提供0Hz - 500Hz的输出频率。若客户需在50Hz以上运行时,请考虑机械装置的承受力。
- 机械装置的振动:变频器在一些输出频率处,可能会遇到负载装置的机械共振点,可通过设置变频器内跳跃频率参数来避开。
- 关于电动机发热及噪声:因变频器输出电压是PWM波,含有一定的谐波,因此电机的温升、噪声和振动同工频运行相比会略有增加。
- 输出侧有压敏器件或改善功率因数的电容的情况:变频器输出是PWM波,输出侧如安装有改善功率因数的电容或防雷用压敏电阻等,易引发变频器瞬间过电流甚至损坏变频器。请不要使用。
- 变频器输入、输出端所用接触器等开关器件:若在电源和变频器输入端之间加装接触器,则不允许用此接触器来控制变频器的启停。一定需要用该接触器控制变频器启停时,间隔不要小于一个小时。频繁的充放电易降低变频器内电容器的使用寿命。若输出端和电机之间装有接触器等开关器件,应确保变频器在无输出时进行通断操作,否则易造成变频器内模块损坏。
- 雷电冲击保护:本系列变频器内装有雷击过电流保护装置,对于感应雷有一定的自我保护能力。对于雷电频发处客户还应在变频器前端加装保护。
- 海拔高度与降额使用:在海拔高度超过1000m的地区,由于空气稀薄造成变频器的散热效果变差,有必要降额使用。此情况请向我公司进行技术咨询。
- 一些特殊用法:如果客户在使用时需用到本手册所提供的建议接线图以外的方法时,如共直流母线等,请向我公司咨询。
- 变频器报废时注意:主回路的电解电容和印制板上电解电容焚烧时可能发生爆炸。塑胶件焚烧时会产生有毒气体。请作为工业垃圾进行处理。
- 关于适配电机:
- 标准适配电机为四极鼠笼式异步感应电机或者永磁同步电机。若非上述电机请一定按电机额定电流选配变频器。
- 非变频电机的冷却风扇与转子轴是同轴连接,转速降低时风扇冷却效果降低,因此,电机出现过热的场合应加装强排气扇或更换为变频电机;
- 变频器已经内置适配电机标准参数,根据实际情况有必要进行电机参数辨识或修改缺省值以尽量符合实际值,否则会影响运行效果及保护性能;
- 由于电缆或电机内部出现短路会造成变频器报警,甚至炸机。因此,请首先对初始安装的电机及电缆进行绝缘短路测试,日常维护中也需经常进行此测试。注意,做这种测试时务必将变频器与被测试部分全部断开。
2.变频器型号与技术参数
2.1 SK600系列变频器型号与技术参数
| 三相电源: 380V, 50/60Hz | 电源容量 (KVA) | 输入电流 (A) | 输出电流 (A) | G型机 (KW) | P型机 (KW) |
|---|---|---|---|---|---|
| SK600T0.7GB | 1.5 | 3.4 | 2.1 | 0.75 | 1 |
| SK600T1.5GB | 3.0 | 5.0 | 3.8 | 1.5 | 2 |
| SK600T2.2GB | 4.0 | 5.8 | 5.1 | 2.2 | 3 |
| SK600T3.7GB | 5.9 | 10.5 | 9.0 | 3.7 | 5 |
| SK600T5.5GB | 8.9 | 14.6 | 13.0 | 5.5 | 7.5 |
| SK600T7.5GB | 11.0 | 20.5 | 17.0 | 7.5 | 10 |
| SK600T11GB | 17.0 | 26.0 | 25.0 | 11.0 | 15 |
| SK600T15GB | 21.0 | 35.0 | 32.0 | 15.0 | 20 |
| SK600T18.5G | 24.0 | 38.5 | 37.0 | 18.5 | 25 |
| SK600T22G | 30.0 | 46.5 | 45.0 | 22 | 30 |
| SK600T30G | 40.0 | 62.0 | 60.0 | 30 | 40 |
| SK600T37G | 57.0 | 76.0 | 75.0 | 37 | 50 |
| SK600T45G | 69.0 | 92.0 | 91.0 | 45 | 60 |
| SK600T55G | 85.0 | 113.0 | 112.0 | 55 | 70 |
| SK600T75G | 114.0 | 157.0 | 150.0 | 75 | 100 |
| SK600T90G | 134.0 | 180.0 | 176.0 | 90 | 125 |
| SK600T110G | 160.0 | 214.0 | 210.0 | 110 | 150 |
| SK600T132G | 192.0 | 256.0 | 253.0 | 132 | 175 |
| SK600T160G | 231.0 | 307.0 | 304.0 | 160 | 210 |
| SK600T200G | 250.0 | 385.0 | 377.0 | 200 | 260 |
| SK600T220G | 280.0 | 430.0 | 426.0 | 220 | 300 |
| SK600T250G | 355.0 | 468.0 | 465.0 | 250 | 350 |
| SK600T280G | 396.0 | 525.0 | 520.0 | 280 | 370 |
| SK600T315G | 445.0 | 590.0 | 585.0 | 315 | 500 |
| SK600T355G | 500.0 | 665.0 | 650.0 | 355 | 420 |
| SK600T400G | 565.0 | 785.0 | 725.0 | 400 | 530 |
| SK600T450G | 630.0 | 883.0 | 820.0 | 450 | 600 |
2.2 技术规范
| 项目 | 规格 |
|---|---|
| 最高频率 | 矢量控制: 0 - 500Hz V/F控制: 0 - 3200Hz |
| 载波频率 | 0.5kHz - 16kHz可根据负载特性,自动调整载波频率 |
| 输入频率分辨率 | 数字设定: 0.01Hz 模拟设定:最高频率×0.025% |
| 控制方式 | 开环矢量控制(SVC) 闭环矢量控制(FVC) V/F控制 |
| 启动转矩 | G型机: 0.5Hz/150% (SVC); 0Hz/180% (FVC) P型机: 0.5Hz/100% |
| 调速范围 | 1 : 100 (SVC) 1 : 1000 (FVC) |
| 稳速精度 | ±0.5% (SVC) ±0.02% (FVC) |
| 转矩控制精度 | ±5% (FVC) |
| 过载能力 | G型机: 150%额定电流60s;180%额定电流3s P型机: 120%额定电流60s;150%额定电流3s |
| 转矩提升 | 自动转矩提升;手动转矩提升0.1% - 30.0% |
| V/F曲线 | 三种方式:直线型;多点型;(1.2次方、1.4次方、1.6次方、1.8次方、2次方)N次方型V/F曲线 |
| V/F分离 | 2种方式:全分离、半分离 |
| 加减速曲线 | 直线或S加减速曲线加减速方式。四种加减速时间,时间范围0.0 - 6500.0s |
| 直流制动 | 直流制动频率: 0.00Hz - 最大频率 制动时间: 0.0s - 36.0s 制动动作电流值: 0.0% - 100.0% |
| 点动控制 | 点动频率范围: 0.00Hz - 50.00Hz。点动加减速时间0.0s - 6500.0s |
| 简易PLC、多段速运行 | 通过内置PLC或控制端子实现最多16段速运行 |
| 内置PID | 可方便实现过程控制闭环控制系统 |
| 自动电压调整(AVR) | 当电网电压变化时,能自动保持输出电压恒定 |
| 过压过流失速控制 | 对运行期间电流电压自动限制,防止频繁过流过压跳闸 |
| 快速限流功能 | 最大限度减小过流故障,保护变频器正常运行 |
| 转矩限定与控制 | “挖土机”特性,对运行期间转矩自动限制,防止频繁过流跳闸;闭环矢量模式可实现转矩控制 |
| 出色的性能 | 以高性能的电流矢量控制技术实现异步电机和同步电机控制 |
| 个性化功能 | 瞬停不停:瞬时停电时通过负载回馈能量补偿电压的降低,维持变频器短时间内继续运行 快速限流:避免变频器频繁的出现过流故障 虚拟IO:五组虚拟DIDO,可实现简易逻辑控制 定时控制:定时控制功能,设定时间范围0.0Min - 6500.0Min 多电机切换:四组电机参数,可实现四个电机切换控制 多线程总线支持:支持四种现场总线: RS - 485、Profibus - DP、CANlink、CANopen 多编码器支持:支持差分、开路集电极、UVW、旋转变压器、正余弦等编码器 用户可编程:选配用户可编程卡,可以实现二次开发 强大的后台软件:支持变频器参数操作及虚拟示波器功能。通过虚拟示波器可实现对变频器内部状态的图形监视 |
| 命令源 | 操作面板给定、控制端子给定、串行通讯口给定。可通过多种方式切换 |
| 运行 | 频率源:10种频率源:数字给定、模拟电压给定、模拟电流给定、脉冲给定、串行口给定。可通过多种方式切换 辅助频率源:10种辅助频率源。可灵活实现辅助频率微调、频率合成 |
| 输入端子 | 标准: 5个数字输入端子,其中1个支持最高100kHz的高速脉冲输入 2个模拟量输入端子,1个仅支持0 - 10V电压输入,1个支持0 - 10V电压输入或4 - 20mA电流输入 扩展能力: 5个数字输入端子 1个模拟量输入端子,支持 - 10 - 10V电压输入,且支持PT100\PT1000 |
| 输出端子 | 标准: 1个高速脉冲输出端子(可选为开路集电极式),支持0 - 100kHz的方波信号输出 1个数字输出端子 1个继电器输出端子 1个模拟输出端子,支持0 - 20mA电流输出或0 - 10V电压输出 扩展能力: 1个数字输出端子 1个继电器输出端子 1个模拟输出端子,支持0 - 20mA电流输出或0 - 10V电压输出 |
| 显示与键盘操作 | LED显示:显示参数 LCD显示:可选件,中/英文提示操作内容 参数拷贝:可通过LCD操作面板选件实现参数的快速复制 按键锁定和功能选择:实现按键的部分或全部锁定,定义部分按键的作用范围,以防止误操作 |
| 保护功能 | 上电电机短路检测、输入输出缺相保护、过流保护、过压保护、欠压保护、过热保护、过载保护等 |
| 选配件 | LCD操作面板、制动组件、IO扩展卡1、IO扩展卡2、用户可编程卡、RS485通讯卡、Profibus - DP通讯卡、CANlink通讯卡、CANopen通讯卡、差分输入PG卡、UVW差分输入PG卡、旋转变压器PG卡、OC输入PG卡 |
| 环境 | 使用场所:室内,不受阳光直晒,无尘埃、腐蚀性气体、可燃性气体、油雾、水蒸汽、滴水或盐份等 海拔高度:低于1000m 环境温度:- 10℃ - + 40℃(环境温度在40℃ - 50℃,请降额使用) 湿度:小于95%RH,无水珠凝结 振动:小于5.9m/s²(0.6g) 存储温度:- 20℃ - + 60℃ |
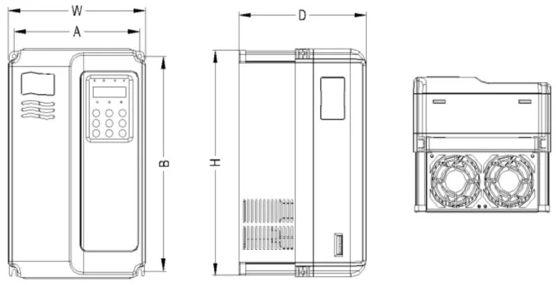
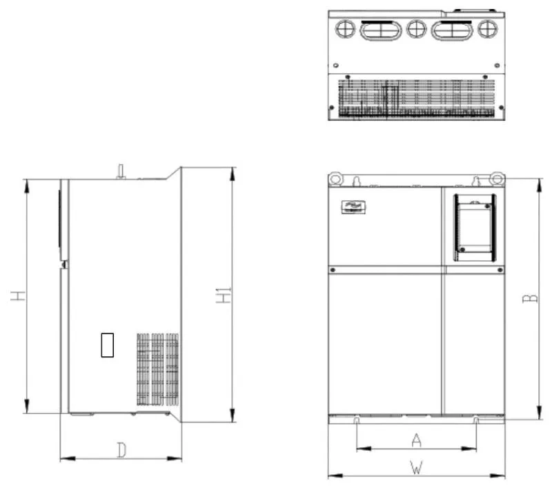
2.3 SK600变频器外型及安装孔位尺寸(mm)


| 功率(kw) | 安装尺寸(mm)AxB | 外形尺寸(mm)HxWxD | 安装孔径(mm)d |
|---|---|---|---|
| 1.5 - 2.2 | 113x172 | 186x125x164 | 5 |
| 4 - 7.5 | 148x236 | 248x160x183 | 5 |
| 11 - 22 | 190x305 | 322x208x192 | 6 |
| 30 - 37 | 235x447 | 463x285x228 | 6.5 |
| 45 - 75 | 260x580 | 600x385x265 | 7 |
| 90 - 132 | 343x678 | 700x473x307 | 9 |
| 160 - 200 | 449x903 | 930x579x380 | 12.5 |
| 220 - 315 | 420x1030 | 1060x650x377 | 12.5 |
| 355 - 400 | 520x1300 | 1360x800x388 | 12.5 |
2.4 SK600变频器外引键盘开孔尺寸

3.变频器的日常保养与维护
3.1 日常保养
由于环境的温度、湿度、粉尘及振动的影响,会导致变频器内部的器件老化,导致变频器潜在的故障发生或降低了变频器的使用寿命。因此,有必要对变频器实施日常和定期的保养及维护。
- 日常检查项目:
- 电机运行中声音是否发生异常变化。
- 电机运行中是否产生了振动。
- 变频器安装环境是否发生变化。
- 变频器散热风扇是否正常工作。
- 变频器是否过热。
- 日常清洁:
- 应始终保持变频器处于清洁状态。
- 有效清除变频器上表面积尘,防止积尘进入变频器内部,特别是金属粉尘。
- 有效清除变频器散热风扇的油污。
3.2 定期检查
请定期对运行中难以检查的地方检查。
- 定期检查项目:
- 检查风道,并定期清洁。
- 检查螺丝是否有松动。
- 检查变频器是否受到腐蚀。
- 检查接线端子是否有拉弧痕迹。
- 主回路绝缘测试。
- 提醒:在用兆欧表(请用直流500V兆欧表)测量电机绝缘电阻时,要将主回路线与变频器脱开。不要用绝缘电阻表测试控制回路绝缘,不必进行高压测试(出厂时已完成)。
3.3 变频器易损件更换
变频器易损件主要有冷却风扇和滤波用电解电容器,其寿命与使用的环境及保养状况密切相关。一般寿命时间为:
| 器件名称 | 寿命时间 |
|---|---|
| 风扇 | 2 - 3年 |
| 电解电容 | 4 - 5年 |
用户可以根据运行时间确定更换年限。
- 冷却风扇:
- 可能损坏原因:轴承磨损、叶片老化。
- 判别标准:风扇叶片等是否有裂缝,开机时声音是否有异常振动声。
- 滤波电解电容:
- 可能损坏原因:输入电源品质差、环境温度较高,频繁的负载跳变、电解质老化。
- 判别标准:有无液体漏出、安全阀是否已凸出,静电电容的测定,绝缘电阻的测定。
3.4 变频器的存贮
用户购买变频器后,暂时存贮和长期存贮必须注意以下几点:
- 存储时尽量按原包装装入本公司的包装箱内。
- 长时间存放会导致电解电容的劣化,必须保证在2年之内通一次电,通电时间至少5小时,输入电压必须用调压器缓缓升高至额定值。
3.5 变频器的保修说明
- 免费保修仅指变频器本身。在正常使用情况下,发生故障或损坏,我公司负责20个月保修(从制造出厂之日起,以机身上条形码为准),20个月以上,将收取合理的维修费用。
- 在20个月内,如发生以下情况,应收取一定的维修费用:
- 用户不按使用手册中的规定,带来的机器损害。
- 由于火灾、水灾、电压异常等造成的损害。
- 将变频器用于非正常功能时造成的损害。
- 有关服务费用按照厂家统一标准计算,如有契约,以契约优先的原则处理。
4.变频器的制动组件选型指南
4.1 制动组件选型指南
下方选型表是指导数据,用户可根据实际情况选择不同的电阻阻值和功率(但阻值一定不能小于表中推荐值,功率可以大)。制动电阻的选择需要根据实际应用系统中电机发电的功率来确定,与系统惯性、减速时间、位能负载的能量等都有关系,需要客户根据实际情况选择。系统的惯量越大、需要的减速时间越短、制动得越频繁,则制动电阻需要选择功率越大、阻值越小。
- 阻值的选择:制动时,电机的再生能量几乎全部消耗在制动电阻上。可根据公式:$U*U/R = Pb$,公式中$U$为系统稳定制动的制动电压(不同的系统也不一样,对于380VAC系统一般取700V),$Pb$为制动功率 。
- 制动电阻的功率选择:理论上制动电阻的功率和制动功率一致,但是考虑到降额为70%。可根据公式:$0.7Pr = PbD$,$Pr$ 为电阻的功率,$D$为制动频度(再生过程占整个工作过程的比例)。电梯、开卷和取卷的制动频度为20% - 30%,离心机为50% - 60%,偶然制动负载为5%,一般取10%。
4.2 变频器制动组件选型表
| 变频器型号 | 制动电阻推荐功率 | 制动电阻推荐阻值 | 制动单元 | 备注 |
|---|---|---|---|---|
| 单相220V | ||||
| SK600S0.4GB | 80W | ≥200Ω | 标准内置 | 无特殊说明 |
| SK600S0.7GB | 80W | ≥150Ω | 标准内置 | |
| SK600S1.5GB | 100W | ≥100Ω | 标准内置 | |
| SK600S2.2GB | 100W | ≥70Ω | 标准内置 | |
| 三相220V | ||||
| SK600 - 2T0.4GB | 150W | ≥150Ω | ||
| SK600 - 2T0.75GB | 150W | ≥110Ω | 标准内置 | |
| SK600 - 2T1.1GB | 250W | ≥100Ω | ||
| SK600 - 2T2.2GB | 300W | ≥65Ω | 无特殊说明 | |
| SK600 - 2T3.7GB | 400W | ≥45Ω | ||
| SK600 - 2T5.5GB | 800W | ≥22Ω | ||
| SK600 - 2T7.5GB | 1000W | ≥16Ω | ||
| SK600 - 2T11G | 1500W | ≥11Ω | 变频器型号后加“B” | |
| SK600 - 2T15G | 2500W | ≥8Ω | 内置可选 | |
| SK600 - 2T18.5G | 3.7kW | ≥8.0Ω | 外置 | VFDBU - 35 - A |
| SK600 - 2T22G | 4.5kW | ≥8Ω | 外置 | VFDBU - 35 - A |
| SK600 - 2T30G | 5.5kW | ≥4Ω | 外置 | VFDBU - 70 - A |
| SK600 - 2T37G | 7.5kW | ≥4Ω | 外置 | VFDBU - 70 - A |
| SK600 - 2T45G | 4.5kW×2 | ≥4Ω×2 | 外置 | VFDBU - 70 - A×2 |
| SK600 - 2T55G | 5.5kW×2 | ≥4Ω×2 | 外置 | VFDBU - 70 - A×2 |
| SK600 - 2T75G | 16kW | ≥1.2Ω | 外置 | VFDBU - 200 - A |
| 三相380V | ||||
| SK600T0.7GB | 150W | ≥300Ω | 无特殊说明 | |
| SK600T1.5GB | 150W | ≥220Ω | ||
| SK600T2.2GB | 250W | ≥200Ω | ||
| SK600T3.7GB | 300W | ≥130Ω | 标准内置 | |
| SK600T5.5GB | 400W | ≥90Ω | ||
| SK600T7.5GB | 500W | ≥65Ω | ||
| SK600T11GB | 800W | ≥43Ω | ||
| SK600T15GB | 1000W | ≥32Ω | ||
| SK600T18.5 | 1300W | ≥25Ω | 变频器型号后加“B” | |
| SK600T22 | 1500W | ≥22Ω | 内置可选 | |
| SK600T30 | 2500W | ≥16Ω | ||
| SK600T37 | 3.7kW | ≥16.0Ω | 外置 | VFDBU - 35 - B |
| SK600T45 | 4.5kW | ≥16Ω | 外置 | VFDBU - 35 - B |
| SK600T55 | 5.5kW | ≥8Ω | 外置 | VFDBU - 70 - B |
| SK600T75 | 7.5kW | ≥8Ω | 外置 | VFDBU - 70 - B |
| SK600T90 | 4.5kW×2 | ≥8Ω×2 | 外置 | VFDBU - 70 - B×2 |
| SK600T110 | 5.5kW×2 | ≥8Ω×2 | 外置 | VFDBU - 70 - B×2 |
| SK600T132 | 6.5kW×2 | ≥8Ω×2 | 外置 | VFDBU - 70 - B×2 |
| SK600T160 | 16kW | ≥2.5Ω | 外置 | VFDBU - 200 - B |
| SK600T200 | 20kW | ≥2.5Ω | 外置 | VFDBU - 200 - B |
| SK600T220 | 22kW | ≥2.5Ω | 外置 | VFDBU - 200 - B |
| SK600T250 | 12.5kW×2 | ≥2.5Ω×2 | 外置 | VFDBU - 200 - B×2 |
| SK600T280 | 14kW×2 | ≥2.5Ω×2 | 外置 | VFDBU - 200 - B×2 |
| SK600T315 | 16kW×2 | ≥2.5Ω×2 | 外置 | VFDBU - 200 - B×2 |
| SK600T355 | 17kW×2 | ≥2.5Ω×2 | 外置 | VFDBU - 200 - B×2 |
| SK600T400 | 14kW×3 | ≥2.5Ω×3 | 外置 | VFDBU - 200 - B×3 |
| SK600T450 | 15kW×3 | ≥2.5Ω×3 | 外置 | VFDBU - 200 - B×3 |
注:×2表示两个制动单元带各自的制动电阻并联使用,×3意义同×2。
5.变频器机械与电气安装
5.1单相变频器主回路端子说明
| 端子标记 | 名称 | 说明 |
|---|---|---|
| L1、L2 | 单相电源输入端子 | 单相220V交流电源连接点 |
| ( + )、( - ) | 直流母线正、负端子 | 共直流母线输入点 |
| ( + )、PB | 制动电阻连接端子 | 连接制动电阻 |
| U、V、W | 变频器输出端子 | 连接三相电动机 |
| PE | 接地端子 | 接地端子 |
5.2三相变频器主回路端子说明
| 端子标记 | 名称 | 说明 |
|---|---|---|
| R、S、T | 三相电源输入端子 | 交流输入三相电源连接点 |
| ( + )、( - ) | 直流母线正、负端子 | 共直流母线输入点,37kW以上外置制动单元的连接点 |
| ( + )、PB | 制动电阻连接端子 | 30kW以下(220V为15kW以下)制动电阻连接点 |
| P、( + ) | 外置电抗器连接端子 | 外置电抗器连接点 |
| U、V、W | 变频器输出端子 | 连接三相电动机 |
| PE | 接地端子 | 接地端子 |
5.3配线注意事项
- 输入电源L1、L2或R、S、T:变频器的输入侧接线,无相序要求。
- 直流母线(+)、(-)
- 注意刚停电后直流母线(+)、(-)端子尚有残余电压,须等CHARGE灯灭掉后并确认停电10分钟后才能进行配线操作,否则有触电的危险。
- 37kW以上(220V为18.5kW以上)选用外置制动组件时,注意(+)、(-)极性不能接反,否则导致变频器损坏甚至火灾。
- 制动单元的配线长度不应超过10m,应使用双绞线或紧密双线并行配线。
- 不可将制动电阻直接接在直流母线上,可能会引起变频器损坏甚至火灾。
- 制动电阻连接端子(+)、PB
- 30kW以下(220V为15kW以下)且确认已经内置制动单元的机型,其制动电阻连接端子才有效。
- 制动电阻选型参考推荐值且配线距离应小于5m,否则可能导致变频器损坏。
- 外置电抗器连接端子P、(+):75kW及以上(220V为37KW以上)功率变频器、电抗器外置,装配时把P、(+)端子之间的连接片去掉,电抗器接在两个端子之间。
- 变频器输出侧U、V、W
- 变频器侧出侧不可连接电容器或浪涌吸收器,否则会引起变频器经常保护甚至损坏。
- 电机电缆过长时,由于分布电容的影响,易产生电气谐振,从而引起电机绝缘破坏或产生较大漏电流使变频器过流保护。电机电缆长度大于100m时,须加装交流输出电抗器。
- 接地端子PE
- 端子必须可靠接地,接地线阻值必须少于0.1Ω,否则会导致设备工作异常甚至损坏。
- 不可将接地端子和电源零线N端子共用。
6.变频器控制回路接线方式
6.1 控制回路接线示意图

6.2 控制端子说明
控制回路端子布置图如下示:

485 + 、+10V、AI1、AI2、DI1、DI2、DI3、DI4、DI5、COM、485 - 、GND、GND、AO1、CME、COM、D01、FM、 + 24V、OP、T/A、T/B、T/C。
控制端子功能说明:
| 类别 | 端子符号 | 端子名称 | 功能说明 |
|---|---|---|---|
| 电源 | + 10V - GND | 外接 + 10V电源 | 向外提供 +10V电源,最大输出电流: 10mA,一般用作外接电位器工作电源,电位器阻值范围: 1kΩ - 5kΩ |
| 电源 | + 24V - COM | 外接 + 24V电源 | 向外提供 +24V电源,一般用作数字输入输出端子工作电源和外接传感器电源,最大输出电流: 200mA |
| 电源 | OP | 外部电源输入端子 | 出厂默认与 + 24V连接,当利用外部信号驱动DI1 - DI5时,OP需与外部电源连接,且与 + 24V电源端子断开 |
| 模拟输入 | AI1 - GND | 模拟量输入端子1 | 1. 输入电压范围: DC 0V - 10V 2. 输入阻抗: 22kΩ |
| 模拟输入 | AI2 - GND | 模拟量输入端子2 | 1. 输入范围: DC 0V - 10V/4mA - 20mA,由控制板上的J8线选择决定。 2. 输入阻抗: 电压输入时22kΩ,电流输入时500Ω |
| 数字输入 | DI1 - OP | 数字输入1 | 1. 光藕隔离,兼容双极性输入 2. 输入阻抗: 2.4kΩ 3. 电平输入时电压范围: 9V - 30V |
| 数字输入 | DI2 - OP | 数字输入2 | 同DI1 - OP特性 |
| 数字输入 | DI3 - OP | 数字输入3 | 同DI1 - OP特性 |
| 数字输入 | DI4 - OP | 数字输入4 | 同DI1 - OP特性 |
| 数字输入 | DI5 - OP | 高速脉冲输入端子 | 除有DI1 - DI4的特点外,还可作为高速脉冲输入通道。最高输入频率: 100kHz |
| 模拟输出 | AO1 - GND | 模拟输出1 | 由控制板上的J5跳线选择决定电压或电流输出。输出电压范围: 0V - 10V;输出电流范围: 0mA - 20mA |
| 数字输出 | DO1 - + 24V | 数字输出1 | 光藕隔离,双极性开路集电极输出。输出电压范围: 0V - 24V;输出电流范围: 0mA - 50mA。注意: 数字输出地CME与数字输入地COM是内部隔离的,但出厂时CME与COM已经外部短接(此时DO1默认为 + 24V驱动)。当DO1想用外部电源驱动时,必须断开CME与COM的外部短接 |
| 数字输出 | FM - CME | 高速脉冲输出 | 受功能码P5 - 00 “FM端子输出方式选择”约束。当作为高速脉冲输出,最高频率到100kHz;当作为集电极开路输出,与DO1规格一样 |
| 继电器输出 | T/A - T/B | 常闭端子 | 触点驱动能力: AC250V,3A,COSø = 0.4;DC 30V,1A |
| 继电器输出 | T/A - T/C | 常开端子 | 同T/A - T/B触点驱动能力 |
| 辅助接口 | J12 | 功能扩展卡接口 | 28芯端子,与可选卡 (I/O扩展卡、PLC卡、各种总线卡等选配卡)接口 |
| 辅助接口 | J3 | PG卡接口 | 可选择: OC,差分,UVW,旋变等接口 |
| 辅助接口 | J7 | 外引键盘接口 | 外引键盘 |
7.变频器操作与显示界面介绍
7.1 操作与显示界面介绍
用操作面板,可对变频器进行功能参数修改、变频器工作状态监控和变频器运行控制(启动、停止)等操作,其外型及功能区如下图所示:

命令源指示灯、单位指示灯、RENIND LV、数据显示区、电位器调位键、编程键(PRG)、递增键、确认键(ENTER)、递减键、运行键、停机/复位键、多功能选择键、移位键。
- 功能指示灯说明:
- RUN:灯灭时表示变频器处于停机状态,灯亮时表示变频器处于运转状态。
- LOCAL/REMOT:键盘操作、端子操作与远程操作(通信控制)指示灯:
| LOCAL/REMOT状态 | 起停控制方式 |
|---|---|
| 熄灭 | 面板起停控制方式 |
| 常亮 | 端子起停控制方式 |
| 闪烁 | 通讯起停控制方式 |
- FWD/REV:正反转指示灯,灯亮表示处于正转状态。
- TUNE/TC:调谐/转矩控制/故障指示灯,灯亮表示处于转矩控制模式,灯慢闪表示处于调谐状态,灯快烁表示处于故障状态。
- 单位指示灯:Hz(频率单位)、A(电流单位)、V(电压单位)、RPM(Hz + A)(转速单位)、% (A + V)(百分数)。
- 数码显示区:5位LED显示,可显示设定频率、输出频率,各种监视数据以及报警代码等。
- 键盘按钮说明表:
按键 名称 功能 PRG 编程键 一级菜单进入或退出 ENTER 确认键 逐级进入菜单画面、设定参数确认 △ 递增键 数据或功能码的递增 ▽ 递减键 数据或功能码的递减 ▽ 移位键 在停机显示界面和运行显示界面下,可循环选择显示参数;在修改参数时,可以选择参数的修改位 RUN 运行键 在键盘操作方式下,用于运行操作 STOP/RES 停止/复位 运行状态时,按此键可用于停止运行操作;故障报警状态时,可用来复位操作,该键的特性受功能码P7 - 02制约 MF.K 多功能选择键 根据P7 - 01作功能切换选择 QUICK 菜单模式选择键 根据PP - 03中值切换不同的菜单模式(默认为一种菜单模式)
8.变频器基本功能参数表
符号说明
PP-00设为非0值,即设置了参数保护密码,在功能参数模式和用户更改参数模式下,参数菜单必须在正确输入密码后才能进入,取消密码,需将PP-00设为0。
用户定制参数模式下的参数菜单不受密码保护。
P组、A组是基本功能参数,U组是监视功能参数。功能表中符号说明如下:
| 符号 | 说明 |
|---|---|
| “☆” | 表示该参数的设定值在变频器处于停机、运行状态中,均可更改 |
| “★” | 表示该参数的设定值在变频器处于运行状态时,不可更改 |
| “●” | 表示该参数的数值是实际检测记录值,不能更改 |
| “ * ” | 表示该参数是“厂家参数”,仅限于制造厂家设置,禁止用户进行操作 |
P0基本功能组
| 功能码 | 名称 | 设定范围 | 出厂值 | 更改 |
|---|---|---|---|---|
| P0 - 00 | GP类型显示 | 1 : G型(恒转矩负载机型) 2 : P型(风机、水泵类负载机型) | 机型确定 | ● |
| P0 - 01 | 第1电机控制方式 | 0 :无速度传感器矢量控制(SVC) 1 :有速度传感器矢量控制(FVC) 2 : V/F控制 | 2 | ★ |
| P0 - 02 | 命令源选择 | 0 :操作面板命令通道(LED灭) 1 :端子命令通道(LED亮) 2 :通讯命令通道(LED闪烁) | 0 | ☆ |
| P0 - 03 | 主频率源X选择 | 0 :数字设定(预置频率P0 - 08,UP/DOWN可修改,掉电不记忆) 1 :数字设定(预置频率P0 - 08,UP/DOWN可修改,掉电记忆) 2 : AI1 3 : AI2 4 : AI3 5 : PULSE脉冲设定(DI5) 6 :多段指令 7 :简易PLC 8 : PID 9 :通讯给定 | 0 | ★ |
| P0 - 04 | 辅助频率源Y选择 | 同P0 - 03 (主频率源X选择) | 0 | ★ |
| P0 - 05 | 叠加时辅助频率源Y范围选择 | 0 :相对于最大频率 1 :相对于频率源X | 0 | ☆ |
| P0 - 06 | 叠加时辅助频率源Y范围 | 0% - 150% | 100% | ☆ |
| P0 - 07 | 频率源叠加方式选择 | 0 :主频率源X 1 :主辅运算结果(运算关系由十位确定) 2 :主频率源X与辅助频率源Y切换 3 :主频率源X与主辅运算结果切换 4 :辅助频率源Y与主辅运算结果切换 十位:频率源主辅运算关系 0 :主 + 辅 1 :主 - 辅 2 :二者最大值 3 :二者最小值 | 00 | ☆ |
| P0 - 08 | 预置频率 | 0.00Hz - 最大频率(P0 - 10) | 50.00Hz | ☆ |
| P0 - 09 | 运行方向 | 0 :方向一致 1 :方向相反 | 0 | ☆ |
| P0 - 10 | 最大频率 | 50.00Hz - 500.00Hz | 50.00Hz | ★ |
| P0 - 11 | 上限频率源 | 0 : P0 - 12设定 1 : AI1 2 : AI2 3 : AI3 4 : PULSE脉冲设定 5 :通讯给定 | 0 | ★ |
| P0 - 12 | 上限频率 | 下限频率P0 - 14 - 最大频率P0 - 10 | 50.00Hz | ☆ |
| P0 - 13 | 上限频率偏置 | 0.00Hz - 最大频率P0 - 10 | 0.00Hz | ☆ |
| P0 - 14 | 下限频率 | 0.00Hz - 上限频率P0 - 12 | 0.00Hz | ☆ |
| P0 - 15 | 载波频率 | 0.5kHz - 16.0kHz | 机型确定 | ☆ |
| P0 - 16 | 载波频率随温度调整 | 0 :否 1 :是 | 1 | ☆ |
| P0 - 17 | 加速时间1 | 0.00s - 65000s | 机型确定 | ☆ |
| P0 - 18 | 减速时间1 | 0.00s - 65000s | 机型确定 | ☆ |
| P0 - 19 | 加减速时间单位 | 0 : 1秒 1 : 0.1秒 2 : 0.01秒 | 1 | ★ |
| P0 - 22 P0 - 23 | 频率指令分辨率 数字设定频率停机记忆选择 | 2 : 0.01Hz 0 :不记忆 1 :记忆 | 2 0 | ★ ☆ |
| P0 - 24 | 电机选择 | 0 :电机1 1 :电机2 1 :电机3 3 :电机4 | 0 | ★ |
| P0 - 25 | 加减速时间基准频率 | 0 :最大频率(P0 - 10) 1 :设定频率 2 : 100Hz | 0 | ★ |
| P0 - 26 | 运行时频率指令 | 0 :运行频率 1 :设定频率 | 0 | ★ |
| P0 - 27 | 命令源捆绑频率源 | 个位:操作面板命令绑定频率源选择 0 :无绑定 1 :数字设定频率 2 : AI1 3 : AI2 4 : AI3 5 : PULSE脉冲设定(DI5) 6 :多段速 7 :简易PLC 8 : PID 9 :通讯给定 十位:端子命令绑定频率源选择 百位:通讯命令绑定频率源选择 千位:自动运行绑定频率源选择 | 0000 | ☆ |
| P0 - 28 | 通讯扩展卡类型 | 0 : Modbus通讯卡 1 : Profibus - DP通讯卡 2 : CANopen通讯卡 3 : CANlink通讯卡 | 0 | ☆ |
| P0 - 29 | 应用宏 | 出厂值,再选择宏编号。设定范围: 0 - 65535 10000 :功能码恢复出厂设置宏 1 :变频单泵恒压力供水宏 2 :一拖三恒压力供水宏(1变2工) 3 :一拖五恒压力供水宏(1变4工) 7 :消防巡检供水宏 11 :数控机床100Hz宏1 12 :数控机床100Hz宏2 21 :主轴雕刻400Hz宏1 22 :主轴雕刻400Hz宏2 注1 :选择宏编号前,先执行P0 - 29恢复 | 0 | ☆ |
P1第一电机参数
| 功能码 | 名称 | 设定范围 | 出厂值 | 更改 |
|---|---|---|---|---|
| P1 - 00 | 电机类型选择 | 0 :普通异步电机 1 :变频异步电机 2 :永磁同步电机 | 0 | ★ |
| P1 - 01 | 电机额定功率 | 0.1kW - 1000.0kW | 机型确定 | ★ |
| P1 - 02 | 电机额定电压 | 1V - 2000V | 机型确定 | ★ |
| P1 - 03 | 电机额定电流 | 0.01A - 655.35A (变频器功率 <=55kW) 0.1A - 6553.5A (变频器功率 >55kW) | 机型确定 | ★ |
| P1 - 04 | 电机额定频率 | 0.01Hz - 最大频率 | 机型确定 | ★ |
| P1 - 05 | 电机额定转速 | 1rpm - 65535rpm | 机型确定 | ★ |
| P1 - 06 | 异步电机定子电阻 | 0.001Ω - 65.535Ω (变频器功率 <=55kW) 0.0001Ω - 6.5535Ω (变频器功率 >55kW) | 调谐参数 | ★ |
| P1 - 07 | 异步电机转子电阻 | 0.001Ω - 65.535Ω (变频器功率 <=55kW) 0.0001Ω - 6.5535Ω (变频器功率 >55kW) | 调谐参数 | ★ |
| P1 - 08 | 异步电机漏感抗 | 0.01mH - 655.35mH (变频器功率 <=55kW) 0.001mH - 655.35mH (变频器功率 >55kW) | 调谐参数 | ★ |
| P1 - 09 | 异步电机互感抗 | 0.1mH - 6553.5mH (变频器功率 <=55kW) 0.01mH - 6553.5mH (变频器功率 >55kW) | 调谐参数 | ★ |
| P1 - 10 | 异步电机空载电流 | 0.01A - P1 - 03 (变频器功率 <=55kW) 0.1A - P1 - 03 (变频器功率 >55kW) | 调谐参数 | ★ |
| P1 - 16 | 同步电机定子电阻 | 0.001Ω - 65.535Ω (变频器功率 <=55kW) 0.0001Ω - 6.5535Ω (变频器功率 >55kW) | 调谐参数 | ★ |
| P1 - 17 | 同步电机D轴电感 | 0.01mH - 655.35mH (变频器功率 <=55kW) 0.001mH - 655.35mH (变频器功率 >55kW) | 调谐参数 | ★ |
| P1 - 18 | 同步电机Q轴电感 | 0.01mH - 655.35mH (变频器功率 <=55kW) 0.001mH - 655.35mH (变频器功率 >55kW) | 调谐参数 | ★ |
| P1 - 20 | 同步电机反电动势 | 0.1V - 6553.5V | 调谐参数 | ★ |
| P1 - 27 | 编码器线数 | 1 - 65535 | 2500 | ★ |
| P1 - 28 | 编码器类型 | 0 : ABZ增量编码器 1 : UVW增量编码器 2 :旋转变压器 3 :正余弦编码器 4 :省线式UVW编码器 | 0 | ★ |
| P1 - 30 | ABZ增量编码器AB相序 | 0 :正向 1 :反向 | 0 | ★ |
| P1 - 31 | 编码器安装角 | 0.0 - 359.9° | 0.0° | ★ |
| P1 - 32 | UVW编码器UVW相序 | 0 :正向 1 :反向 | 0 | ★ |
| P1 - 33 | UVW编码器偏置角 | 0.0 - 359.9° | 0.0° | ★ |
| P1 - 34 | 旋转变压器极对数 | 1 - 65535 | 1 | ★ |
| P1 - 36 | 速度反馈PG断线检测时间 | 0.0 :不动作 0.1s - 10.0s | 0.0 | ★ |
| P1 - 37 | 调谐选择 | 0 :无操作 1 :异步机静止调谐 2 :异步机完整调谐 11 :同步机静止调谐 12 :同步机完整调谐 | 0 | ★ |
P2组第一电机矢量控制参数
| 功能码 | 名称 | 设定范围 | 出厂值 | 更改 |
|---|---|---|---|---|
| P2 - 00 | 速度环比例增益1 | 1 - 100 | 30 | ☆ |
| P2 - 01 | 速度环积分时间1 | 0.01s - 10.00s | 0.50s | ☆ |
| P2 - 02 | 切换频率1 | 0.00 - P2 - 05 | 5.00Hz | ☆ |
| P2 - 03 | 速度环比例增益2 | 1 - 100 | 20 | ☆ |
| P2 - 04 | 速度环积分时间2 | 0.01s - 10.00s | 1.00s | ☆ |
| P2 - 05 | 切换频率2 | P2 - 02 - 最大频率 | 10.00Hz | ☆ |
| P2 - 06 | 矢量控制转差增益 | 50% - 200% | 150% | ☆ |
| P2 - 07 | 速度环滤波时间常数 | 0.000s - 0.100s | 0.000s | ☆ |
| P2 - 08 | 矢量控制过励磁增益 | 0 - 200 | 64 | ☆ |
| P2 - 09 | 速度控制方式下转矩上限源 | 0 :功能码P2 - 10设定 1 : AI1 2 : AI2 3 : AI3 4 : PULSE脉冲设定 5 :通讯给定 6 : MIN(AI1,AI2) 7 : MAX(AI1,AI2) 1 - 7选项的满量程对应P2 - 10 | 0 | ☆ |
| P2 - 10 | 速度控制方式下转矩上限数字设定 | 0.0% - 200.0% | 150.0% | ☆ |
| P2 - 13 | 励磁调节比例增益 | 0 - 60000 | 2000 | ☆ |
| P2 - 14 | 励磁调节积分增益 | 0 - 60000 | 1300 | ☆ |
| P2 - 15 | 转矩调节比例增益 | 0 - 60000 | 2000 | ☆ |
| P2 - 16 | 转矩调节积分增益 | 0 - 60000 | 1300 | ☆ |
| P2 - 17 | 速度环积分属性 | 个位:积分分离 0 :无效 1 :有效 | 0 | ☆ |
| P2 - 18 | 同步机弱磁模式 | 0: 弱磁无效 1: 直接计算模式 2: 自动调整模式 | 1 | ☆ |
| P2 - 19 | 同步机弱磁深度 | 50% - 500% | 100% | ☆ |
| P2 - 20 | 最大弱磁电流 | 1% - 300% | 50% | ☆ |
| P2 - 21 | 弱磁自动调整增益 | 10% - | ||
| P2 - 22 | 弱磁积分倍数 | 2 - 10 | 2 | ☆ |
P3组V/F控制参数
| 功能码 | 名称 | 设定范围 | 出厂值 | 更改 |
|---|---|---|---|---|
| P3 - 00 | VF曲线设定 | 0 :直线V/F 1 :多点V/F 2 :平方V/F 3 : 1.2次方V/F 4 : 1.4次方V/F 6 : 1.6次方V/F 8 : 1.8次方V/F 9 :保留 10 : VF完全分离模式 11 : VF半分离模式 | 0 | ★ |
| P3 - 01 | 转矩提升 | 0.1% - 30.0% | 机型确定 | ☆ |
| P3 - 02 | 转矩提升截止频率 | 0.00Hz - 最大频率 | 50.00Hz | ★ |
| P3 - 03 | 多点VF频率点1 | 0.00Hz - P3 - 05 | 0.00Hz | ★ |
| P3 - 04 | 多点VF电压点1 | 0.0% - 100.0% | 0.0% | ★ |
| P3 - 05 | 多点VF频率点2 | P3 - 03 - P3 - 07 | 0.00Hz | ★ |
| P3 - 06 | 多点VF电压点2 | 0.0% - 100.0% | 0.0% | ★ |
| P3 - 07 | 多点VF频率点3 | P3 - 05 - 电机额定频率(P1 - 04) | 0.00Hz | ★ |
| P3 - 08 | 多点VF电压点3 | 0.0% - 100.0% | 0.0% | ★ |
| P3 - 09 | VF转差补偿增益 | 0.0% - 200.0% | 0.0% | ☆ |
| P3 - 10 | VF过励磁增益 | 0 - 200 | 64 | ☆ |
| P3 - 11 | VF振荡抑制增益 | 0 - 100 | 机型确定 | ☆ |
| P3 - 13 | VF分离的电压源 | 0 :数字设定(P3 - 14) 1 : AI1 2 : AI2 3 : AI3 4 : PULSE脉冲设定(DI5) 5 :多段指令 6 :简易PLC 7 : PID 8 :通讯给定 注: 100.0%对应电机额定电压 | 0 | ☆ |
| P3 - 14 | VF分离的电压数字设定 | 0V - 电机额定电压 | 0V | ☆ |
| P3 - 15 | VF分离的电压上升时间 | 0.0s - 1000.0s表示0V到额定电压的时间 | 0.0s | ☆ |
P4组输入端子
| 功能码 | 名称 | 设定范围 | 出厂值 | 更改 |
|---|---|---|---|---|
| P4-00 | DI1端子功能选择 | 0 :无功能 1 :正转运行( FWD ) 2 :反转运行( REV ) 3 :三线式运行控制 4 :正转点动( FJOG ) | 1 | ★ |
| P4-01 | DI2端子功能选择 | 5 :反转点动( RJOG ) 6 :端子UP 7 :端子DOWN 8 :自由停车 9 :故障复位( RESET ) 10 :运行暂停 | 2 | ★ |
| P4-02 | DI3端子功能选择 | 11 :外部故障常开输入 12 :多段指令端子1 13 :多段指令端子2 14 :多段指令端子3 15 :多段指令端子4 16 :加减速时间选择端子1 | 4 | ★ |
| P4-03 | DI4端子功能选择 | 17 :加减速时间选择端子2 18 :频率源切换 19 : UP/DOWN设定清零(端子、键盘) 20 :运行命令切换端子1 21 :加减速禁止 | 9 | ★ |
| P4-04 | DI5端子功能选择 | 22 : PID暂停 23 : PLC状态复位 24 :摆频暂停 25 :计数器输入 26 :计数器复位 27 :长度计数输入 | 12 | ★ |
| P4-05 | DI6端子功能选择 | 28 :长度复位 29 :转矩控制禁止 30 : PULSE (脉冲)频率输入 31 :保留 32 :立即直流制动 (仅对DI5有效) | 0 | ★ |
| P4-06 | DI7端子功能选择 | 33 :外部故障常闭输入 34 :频率修改使能 35 : PID作用方向取反 36 :外部停车端子1 37 :运行命令切换端子2 38 : PID积分暂停 | 0 | ★ |
| P4-07 | DI8端子功能选择 | 39 :频率源X与预置频率切换 40 :频率源Y与预置频率切换 41 :电机选择端子1 42 :电机选择端子2 43 : PID参数切换 | 0 | ★ |
| P4-08 | DI9端子功能选择 | 44:用户自定义故障 1 45 :用户自定义故障2 46 :速度控制 / 转矩控制切换 47 :紧急停车 48 :外部停车端子2 49 :减速直流制动 50 :本次运行时间清零 51-59 :保留 | 0 | ★ |
| P4-09 | DI10端子功能选择 | 0 | ★ | |
| P4-10 | DI 滤波时间 | 0.000s - 1.000s | 0.010s | ☆ |
| P4-11 | 端子命令方式 | 0 : 两线式 1 1 : 两线式 2 2 : 三线式 1 3 : 三线式 2 | 0 | ★ |
| P4-12 | 端子 UP/DOWN 变化率 | 0.001Hz/s - 65.535Hz/s | 1.00Hz/s | ☆ |
| P4-13 | AI 曲线 1 最小输入 | 0.00V - P4-15 | 0.00V | ☆ |
| P4-14 | AI 曲线 1 最小输入对应设定 | -100.0% - +100.0% | 0.0% | ☆ |
| P4-15 | AI 曲线 1 最大输入 | P4-13 - +10.00V | 10.00V | ☆ |
| P4-16 | AI 曲线 1 最大输入对应设定 | -100.0% - +100.0% | 100.0% | ☆ |
| P4-17 | AI1 滤波时间 | 0.00s - 10.00s | 0.10s | ☆ |
| P4-18 | AI 曲线 2 最小输入 | 0.00V - P4-20 | 0.00V | ☆ |
| P4-19 | AI 曲线 2 最小输入对应设定 | -100.0% - +100.0% | 0.0% | ☆ |
| P4-20 | AI 曲线 2 最大输入 | P4-18 - +10.00V | 10.00V | ☆ |
| P4-21 | AI 曲线 2 最大输入对应设定 | -100.0% - +100.0% | 100.0% | ☆ |
| P4-22 | AI2 滤波时间 | 0.00s - 10.00s | 0.10s | ☆ |
| P4-23 | AI 曲线 3 最小输入 | -10.00V - P4-25 | 0.1V | ☆ |
| P4-24 | AI 曲线 3 最小输入对应设定 | -100.0% - +100.0% | 0 | ☆ |
| P4-25 | AI 曲线 3 最大输入 | P4-23 - +10.00V | 4.00V | ☆ |
| P4-26 | AI 曲线 3 最大输入对应设定 | -100.0% - +100.0% | 100.0% | ☆ |
| P4-27 | AI3 滤波时间 | 0.00s - 10.00s | 0.10s | ☆ |
| P4-28 | PULSE 最小输入 | 0.00kHz - P4-30 | 0.00kHz | ☆ |
| P4-29 | PULSE 最小输入对应设定 | -100.0% - 100.0% | 0.0% | ☆ |
| P4-30 | PULSE 最大输入 | P4-28 - 100.00kHz | 50.00kHz | ☆ |
| P4-31 | PULSE 最大输入设定 | -100.0% - 100.0% | 100.0% | ☆ |
| P4-32 | PULSE 滤波时间 | 0.00s - 10.00s | 0.10s | ☆ |
| P4-33 | AI 曲线选择 | 个位: AI1 曲线选择 1 : 曲线 1(2 点,见 P4-13 - P4-16) 2 : 曲线 2(2 点,见 P4-18 - P4-21) 3 : 曲线 3(2 点,见 P4-23 - P4-26) 4 : 曲线 4(4 点,见 A6-00 - A6-07) 5 : 曲线 5(4 点,见 A6-08 - A6-15) 十位: AI2 曲线选择,同上 百位: AI3 曲线选择,同上 | 321 | ☆ |
| P4-34 | AI 低于最小输入设定选择 | 个位: AI1 低于最小输入设定选择 0 : 对应最小输入设定 1 : 0.0% 十位: AI2 低于最小输入设定选择,同上 百位: AI3 低于最小输入设定选择,同上 | 000 | ☆ |
| P4-35 | DI1 延迟时间 | 0.0s - 3600.0s | 0.0s | ★ |
| P4-36 | DI2 延迟时间 | 0.0s - 3600.0s | 0.0s | ★ |
| P4-37 | DI3 延迟时间 | 0.0s - 3600.0s | 0.0s | ★ |
| P4-38 | DI 端子有效模式选择 1 | 0 : 高电平有效 1 : 低电平有效 个位: DI1 十位: DI2 百位: DI3 千位: DI4 万位: DI5 | 00000 | ★ |
| P4-39 | DI 端子有效模式选择 2 | 0 : 高电平有效 1 : 低电平有效 个位: DI6 十位: DI7 百位: DI8 千位: DI9 万位: DI10 | 00000 | ★ |
P5 组 输出端子
| 功能码 | 名称 | 设定范围 | 出厂值 | 更改 |
|---|---|---|---|---|
| P5-00 | FM 端子输出模式选择 | 0 : 脉冲输出(FMP) 1 : 开关量输出(FMR) | 0 | ☆ |
| P5-01 | FMR 输出功能选择 | 0 : 无输出 1 : 变频器运行中 2 : 故障输出(故障停机) 3 : 频率水平检测 FDT1 输出 4 : 频率到达 5 : 零速运行中(停机时不输出) 6 : 电机过载预报警 7 : 变频器过载预报警 8 : 设定记数值到达 9 : 长度到达 10 : 简易 PLC 阶段完成 11 : 转矩限定中 12 : 运行准备就绪 13 : AI1>AI2 14 : 上限频率到达 15 : 下限频率到达(运行有关) 16 : 欠压状态输出 17 : 通讯设定 18 : 定位完成(保留) 19 : 定位接近(保留) 20 : 零速运行中 2(停机时也输出) 21 : 累计上电时间到达 22 : 频率水平检测 FDT2 输出 23 : 频率 1 到达输出 24 : 频率 2 到达输出 25 : 电流 1 到达输出 26 : 电流 2 到达输出 27 : 定时到达输出 28 : AI1 输入超限 29 : 掉载中 30 : 反向运行中 31 : 零电流状态 32 : 模块温度到达 33 : 输出电流超限 34 : 下限频率到达(停机也输出) 35 : 告警输出(继续运行) 36 : 电机过温预报警 37 : 本次运行时间到达 | 0 | ☆ |
| P5-02 | 控制板继电器功能选择 (T/A - T/B - T/C) | 同 P5-01 中选项 | 2 | ☆ |
| P5-03 | 扩展卡继电器输出功能选择 (P/A - P/B - P/C) | 同 P5-01 中选项 | 0 | ☆ |
| P5-04 | DO1 输出功能选择 | 同 P5-01 中选项 | 1 | ☆ |
| P5-05 | 扩展卡 DO2 输出选择 | 同 P5-01 中选项 | 4 | ☆ |
| P5-06 | FMP 输出功能选择 | 0 : 运行频率 1 : 设定频率 2 : 输出电流 3 : 输出转矩 4 : 输出功率 5 : 输出电压 6 : PULSE 输入 7 : AI1 8 : AI2 9 : AI3(扩展卡) 10 : 长度 11 : 记数值 12 : 通讯设定 13 : 电机转速 14 : 输出电流(100.0%对应 1000.0A) 15 : 输出电压(100.0%对应 1000.0V) 16 : 保留(100.%对应 100.0kHz) | 0 | ☆ |
| P5-07 | AO1 输出功能选择 | 同 P5-06 中选项 | 0 | ☆ |
| P5-08 | 扩展卡 AO2 输出功能选择 | 同 P5-06 中选项 | 1 | ☆ |
| P5-09 | FMP 输出最大频率 | 0.01kHz - 100.00kHz | 50.00kHz | ☆ |
| P5-10 | AO1 零偏系数 | -100.0% - +100.0% | 0.0% | ☆ |
| P5-11 | AO1 增益 | -10.00 - +10.00 | 1.00 | ☆ |
| P5-12 | 扩展卡 AO2 零偏系数 | -100.0% - +100.0% | 0.0% | ☆ |
| P5-13 | 扩展卡 AO2 增益 | -10.00 - +10.00 | 1.00 | ☆ |
| P5-17 | FMR 输出延迟时间 | 0.0s - 3600.0s | 0.0s | ☆ |
| P5-18 | RELAY1 输出延迟时间 | 0.0s - 3600.0s | 0.0s | ☆ |
| P5-20 | DO1 输出延迟时间 | 0.0s - 3600.0s | 0.0s | ☆ |
| P5-21 | DO2 输出延迟时间 | 0.0s - 3600.0s | 0.0s | ☆ |
| P5-22 | DO 输出端子有效状态选择 | 0 : 正逻辑 1 : 反逻辑 个位: FMR 十位: RELAY1 百位: RELAY2 千位: DO1 万位: DO2 | 00000 | ☆ |
P6 组 启停控制
| 功能码 | 名称 | 设定范围 | 出厂值 | 更改 |
|---|---|---|---|---|
| P6-00 | 启动方式 | 0 : 直接启动 1 : 速度跟踪再启动 2 : 预励磁启动(交流异步机) | 0 | ☆ |
| P6-01 | 转速跟踪方式 | 0 : 从停机频率开始 1 : 从零速开始 2 : 从最大频率开始 | 0 | ★ |
| P6-02 | 转速跟踪快慢 | 1 - 100 | 20 | ☆ |
| P6-03 | 启动频率 | 0.00Hz - 10.00Hz | 0.00Hz | ☆ |
| P6-04 | 启动频率保持时间 | 0.0s-100.0s | 0.0s | ★ |
| P6-05 | 启动直流制动电流/预励磁电流 | 0%-100% | 0% | ★ |
| P6-06 | 启动直流制动时间/预励磁时间 | 0.0s-100.0s | 0.0s | ★ |
| P6-07 | 加速方式 | 0:直线加速 1:S 曲线加速 A 2:S 曲线加速 B | - | ★ |
| P6-08 | S 曲线开始时间比例 | 0.0%-(100.0%-P6-09) | 30.0% | ★ |
| P6-09 | S 曲线结束时间比例 | 0.0%-(100.0%-P6-08) | 30.0% | ★ |
| P6-10 | 停机方式 | 0:减速停车 1:自由停车 | - | ☆ |
| P6-11 | 停机直流制动起始频率 | 0.0Hz-最大频率 | 0.00Hz | ☆ |
| P6-12 | 停机直流制动等待时间 | 0.0s-100.0s | 0.0s | ☆ |
| P6-13 | 停机直流制动电流 | 0%-100% | 0% | ☆ |
| P6-14 | 停机直流制动时间 | 0.0s-100.0s | 0.0s | ☆ |
| P6-15 | 制动使用率 | 0%-100% | 100% | ☆ |
P7 组 键盘与显示
| 功能码 | 名称 | 设定范围 | 出厂值 | 更改 |
|---|---|---|---|---|
| P7-00 | 显示功能扩展 1 个位:电源电压监视方式 0:直流母线电压 1:输入交流电压(前带 U 字母) | - | 00000 | ☆ |
| P7-01 | MF.K 键功能选择 0:MF.K 无效 1:操作面板命令通道与远程命令通道(端子命令通道或通讯命令通道)切换 2:正反转切换 3:正转点动 4:反转点动 | - | 3 | ★ |
| P7-02 | STOP/RESET 键功能 0:只在键盘操作方式下,STOP/RES 键停机功能有效 1:在任何操作方式下,STOP/RES 键停机功能均有效 | - | 1 | ☆ |
| P7-03 | LED 运行显示参数 1 0000~FFFF Bit00: 运行频率 1(Hz) Bit01: 设定频率(Hz) Bit02: 母线电压(V) Bit03: 输出电压(V) Bit04: 输出电流(A) Bit05: 输出功率(kW) Bit06: 输出转矩(%) Bit07: DI 输入状态 Bit08: DO 输出状态 Bit09: AI1 电压(V) Bit10: AI2 电压(V) Bit11: AI3 电压(V) Bit12: 计数值 Bit13: 长度值 Bit14: 负载速度显示 Bit15: PID 设定 | 0000~FFFF | 1F | ☆ |
| P7-04 | LED 运行显示参数 2 0000~FFFF Bit00:PID 反馈 Bit01:PLC 阶段 Bit02:PULSE 输入脉冲频率(kHz) Bit03:运行频率 2(Hz) Bit04:剩余运行时间 Bit05:AI1 校正前电压(V) Bit06:AI2 校正前电压(V) Bit07:AI3 校正前电压(V) Bit08:线速度 Bit09:当前上电时间(Hour) Bit10:当前运行时间(Min) Bit11:PULSE 输入脉冲频率(Hz) Bit12:通讯设定值 Bit13:编码器反馈速度(Hz) Bit14:主频率 X 显示(Hz) Bit15:辅频率 Y 显示(Hz) | 0000~FFFF | 0000 | ☆ |
| P7-05 | LED 停机显示参数 0000~FFFF Bit00: 设定频率(Hz) Bit01: 母线电压(V) Bit02: DI 输入状态 Bit03: DO 输出状态 Bit04: AI1 电压(V) Bit05: AI2 电压(V) Bit06: AI3 电压(V) Bit07: 计数值 Bit08: 长度值 Bit09: PLC 阶段 Bit10: 负载速度 Bit11: PID 设定 Bit12:PULSE 输入脉冲频率(kHz) | 0000~FFFF | 0033 | ☆ |
| P7-06 | 负载速度显示系数 | 0.0001~6.5000 | 1.0000 | ☆ |
| P7-07 | 逆变器模块散热器温度 | 0.0℃~100.0℃ | - | ● |
| P7-08 | 整流桥散热器温度 | 0.0℃~100.0℃ | - | ● |
| P7-09 | 累计运行时间 | 0h~65535h | - | ● |
| P7-10 | 产品号 | - | - | ● |
| P7-11 | 软件版本号 | - | - | ● |
| P7-12 | 负载速度显示小数点位数 0:0 位小数位 1:1 位小数位 2:2 位小数位 3:3 位小数位 | - | 1 | ☆ |
| P7-13 | 累计上电时间 | 0h~65535h | - | ● |
| P7-14 | 累计耗电量 | 0kW~65535 度 | - | ● |
| P7-17 | 数码管 2 停机监视选择 | 0000~FFFF | 0000 | ☆ |
| P7-18 | 数码管 2 运行监视选择 | 0000~FFFF | 0000 | ☆ |
P8 组 辅助功能
| 功能码 | 名称 | 设定范围 | 出厂值 | 更改 |
|---|---|---|---|---|
| P8-00 | 点动运行频率 | 0.00Hz~最大频率 | 6.00Hz | ☆ |
| P8-01 | 点动加速时间 | 0.0s~6500.0s | 20.0s | ☆ |
| P8-02 | 点动减速时间 | 0.0s~6500.0s | 20.0s | ☆ |
| P8-03 | 加速时间 2 | 0.0s~6500.0s | 机型确定 | ☆ |
| P8-04 | 减速时间 2 | 0.0s~6500.0s | 机型确定 | ☆ |
| P8-05 | 加速时间 3 | 0.0s~6500.0s | 机型确定 | ☆ |
| P8-06 | 减速时间 3 | 0.0s~6500.0s | 机型确定 | ☆ |
| P8-07 | 加速时间 4 | 0.0s~6500.0s | 机型确定 | ☆ |
| P8-08 | 减速时间 4 | 0.0s~6500.0s | 机型确定 | ☆ |
| P8-09 | 跳跃频率 1 | 0.00Hz~最大频率 | 0.00Hz | ☆ |
| P8-10 | 跳跃频率 2 | 0.00Hz~最大频率 | 0.00Hz | ☆ |
| P8-11 | 跳跃频率幅度 | 0.00Hz~最大频率 | 0.01Hz | ☆ |
| P8-12 | 正反转死区时间 | 0.0s~3000.0s | 0.0s | ☆ |
| P8-13 | 反转控制使能 | 0:允许 1:禁止 | 0 | ☆ |
| P8-14 | 设定频率低于下限频率运行模式 | 0:以下限频率运行 1:停机 2:零速运行 | 0 | ☆ |
| P8-15 | 下垂控制 | 0.00Hz~10.00Hz | 0.00Hz | ☆ |
| P8-16 | 设定累计上电到达时间 | 0h~65000h | 0h | ☆ |
| P8-17 | 设定累计运行到达时间 | 0h~65000h | 0h | ☆ |
| P8-18 | 启动保护选择 | 0:不保护 1:保护 | 0 | ☆ |
| P8-19 | 频率检测值(FDT1) | 0.00Hz~最大频率 | 50.00Hz | ☆ |
| P8-20 | 频率检测滞后值(FDT1) | 0.0%~100.0%(FDT1电平) | 5.0% | ☆ |
| P8-21 | 频率到达检出宽度 | 0.0%~100.0%(最大频率) | 0.0% | ☆ |
| P8-22 | 加减速过程中跳跃频率是否有效 | 0:无效 1:有效 | 0 | ☆ |
| P8-25 | 加速时间 1与加速时间 2切换频率点 | 0.00Hz~最大频率 | 0.00Hz | ☆ |
| P8-26 | 减速时间 1与减速时间 2切换频率点 | 0.00Hz~最大频率 | 0.00Hz | ☆ |
| P8-27 | 端子点动优先 | 0:无效 1:有效 | 0 | ☆ |
| P8-28 | 频率检测值(FDT2) | 0.00Hz~最大频率 | 50.00Hz | ☆ |
| P8-29 | 频率检测滞后值(FDT2) | 0.0%~100.0%(FDT2电平) | 5.0% | ☆ |
| P8-30 | 任意到达频率检测值 1 | 0.00Hz~最大频率 | 50.00Hz | ☆ |
| P8-31 | 任意到达频率检出宽度 1 | 0.0%~100.0%(最大频率) | 0.0% | ☆ |
| P8-32 | 任意到达频率检测值 2 | 0.00Hz~最大频率 | 50.00Hz | ☆ |
| P8-33 | 任意到达频率检出宽度 2 | 0.0%~100.0%(最大频率) | 0.0% | ☆ |
| P8-34 | 零电流检测水平 | 0.0%~300.0%(100.0%对应电机额定电流 ) | 5.0% | ☆ |
| P8-35 | 零电流检测延迟时间 | 0.01s~600.00s | 0.10s | ☆ |
| P8-36 | 输出电流超限值 | 0.0%(不检测) 0.1%~300.0%(电机额定电流) | 200.0% | ☆ |
| P8-37 | 输出电流超限检测延迟时间 | 0.00s~600.00s | 0.00s | ☆ |
| P8-38 | 任意到达电流 1 | 0.0%~300.0%(电机额定电流) | 100.0% | ☆ |
| P8-39 | 任意到达电流 1宽度 | 0.0%~300.0%(电机额定电流) | 0.0% | ☆ |
| P8-40 | 任意到达电流 2 | 0.0%~300.0%(电机额定电流) | 100.0% | ☆ |
| P8-41 | 任意到达电流 2宽度 | 0.0%~300.0%(电机额定电流) | 0.0% | ☆ |
| P8-42 | 定时功能选择 | 0:无效 1:有效 | 0 | ☆ |
| P8-43 | 定时运行时间选择 | 0:P8-44设定 1:AI1 2:AI2 3:AI3(模拟输入量程对应P8-44 ) | 0 | ☆ |
| P8-44 | 定时运行时间 | 0.0Min~6500.0Min | 0.0Min | ☆ |
| P8-45 | AI1输入电压保护值下限 | 0.00V~P8-46 | 3.10V | ☆ |
| P8-46 | AI1输入电压保护值上限 | P8-45~10.00V | 6.80V | ☆ |
| P8-47 | 模块温度到达 | 0℃~100℃ | 75℃ | ☆ |
| P8-48 | 散热风扇控制 | 0:运行时风扇运转 1:风扇一直运转 | 0 | ☆ |
| P8-49 | 唤醒频率 | 休眠频率(P8-51)~最大频率(P0-10) | 0.00Hz | ☆ |
| P8-50 | 唤醒延迟时间 | 0.0s~6500.0s | 0.0s | ☆ |
| P8-51 | 休眠频率 | 0.00Hz~唤醒频率(P8-49) | 0.00Hz | ☆ |
| P8-52 | 休眠延迟时间 | 0.0s~6500.0s | 0.0s | ☆ |
| P8-53 | 本次运行到达时间设定 | 0.0Min~6500.0Min | 0.0Min | ☆ |
P9 组故障与保护
| 功能码 | 名称 | 设定范围 | 出厂值 | 更改 |
|---|---|---|---|---|
| P9-00 | 电机过载保护选择 | 0:禁止 1:允许 | 1 | ☆ |
| P9-01 | 电机过载保护增益 | 0.20~10.00 | 1.00 | ☆ |
| P9-02 | 电机过载预警系数 | 50%~100% | 80% | ☆ |
| P9-03 | 过压失速增益 | 0~100 | 0 | ☆ |
| P9-04 | 过压失速保护电压 | 120%~150% | 130% | ☆ |
| P9-05 | 过流失速增益 | 0~100 | 20 | ☆ |
| P9-06 | 过流失速保护电流 | 100%~200% | 150% | ☆ |
| P9-07 | 上电对地短路保护选择 | 0:无效 1:有效 | 1 | ☆ |
| P9-09 | 故障自动复位次数 | 0~20 | 0 | ☆ |
| P9-10 | 故障自动复位期间故障 DO 动作选择 | 0:不动作 1:动作 | 0 | ☆ |
| P9-11 | 故障自动复位间隔时间 | 0.1s~100.0s | 1.0s | ☆ |
| P9-12 | 输入缺相与接触器保护选择 | 0:禁止 1:允许 | 1 | ☆ |
| P9-13 | 输出缺相保护选择 | 0:禁止 1:允许 | 1 | ☆ |
| P9-14 | 第一次故障类型 | 0:无故障 1:保留 2:加速过电流 3:减速过电流 4:恒速过电流 5:加速过电压 6:减速过电压 7:恒速过电压 8:缓冲电阻过载 9:欠压 10:变频器过载 11:电机过载 12:输入缺相 13:输出缺相 14:模块过热 15:外部故障 16:通讯异常 17:接触器异常 18:电流检测异常 19:电机调谐异常 20:编码器/PG 卡异常 21:参数读写异常 22:变频器硬件异常 23:电机对地短路 24:保留 25:保留 26:运行时间到达 27: 用户自定义故障 1 28: 用户自定义故障 2 29: 上电时间到达 30:掉载 31:运行时 PID 反馈丢失 40:快速限流超时 41:运行时切换电机 42: 速度偏差过大 43:电机超速 45:电机过温 51:初始位置错误 | - | ● |
| P9-15 | 第二次故障类型 | - | - | ● |
| P9-16 | 第三次(最近一次)故障类型 | - | - | ● |
| P9-17 | 第三次(最近一次)故障时频率 | - | - | ● |
| P9-18 | 第三次(最近一次)故障时电流 | - | - | ● |
| P9-19 | 第三次(最近一次)故障时母线电压 | - | - | ● |
| P9-20 | 第三次(最近一次)故障时输入端子状态 | - | - | ● |
| P9-21 | 第三次(最近一次)故障时输出端子状态 | - | - | ● |
| P9-22 | 第三次(最近一次)故障时变频器状态 | - | - | ● |
| P9-23 | 第三次(最近一次)故障时上电时间 | - | - | ● |
| P9-24 | 第三次(最近一次)故障时运行时间 | - | - | ● |
| P9-27 | 第二次故障时频率 | - | - | ● |
| P9-28 | 第二次故障时电流 | - | - | ● |
| P9-29 | 第二次故障时母线电压 | - | - | ● |
| P9-30 | 第二次故障时输入端子状态 | - | - | ● |
| P9-31 | 第二次故障时输出端子状态 | - | - | ● |
| P9-32 | 第二次故障时变频器状态 | - | - | ● |
| P9-33 | 第二次故障时上电时间 | - | - | ● |
| P9-34 | 第二次故障时运行时间 | - | - | ● |
| P9-37 | 第一次故障时频率 | - | - | ● |
| P9-38 | 第一次故障时电流 | - | - | ● |
| P9-39 | 第一次故障时母线电压 | - | - | ● |
| P9-40 | 第一次故障时输入端子状态 | - | - | ● |
| P9-41 | 第一次故障时输出端子状态 | - | - | ● |
| P9-42 | 第一次故障时变频器状态 | - | - | ● |
| P9-43 | 第一次故障时上电时间 | - | - | ● |
| P9-44 | 第一次故障时运行时间 | - | - | ● |
| P9-47 | 故障保护动作选择 1 | 个位:电机过载(11) 0:自由停车 1:按停机方式停机 2:继续运行 十位:输入缺相(12) 百位:输出缺相(13) 千位:外部故障(15) 万位:通讯异常(16) | 00000 | ☆ |
| P9-48 | 故障保护动作选择 2 | 个位:编码器/PG 卡异常(20) 0:自由停车 十位:功能码读写异常(21) 0:自由停车 1:按停机方式停机 百位:保留 千位:电机过热(25) 万位:运行时间到达(26) | 00000 | ☆ |
| P9-49 | 故障保护动作选择 3 | 个位:用户自定义故障 1(27) 0:自由停车 1:按停机方式停机 2:继续运行 十位:用户自定义故障 2(28) 0:自由停车 1:按停机方式停机 2:继续运行 百位:上电时间到达(29) 0:自由停车 1:按停机方式停机 2:继续运行 千位:掉载(30) 0:自由停车 1:减速停车 2:减速到电机额定频率的 7%继续运行,不掉载时自动恢复到设定频率运行 万位:运行时 PID 反馈丢失(31) 0:自由停车 1:按停机方式停机 2:继续运行 | 00000 | ☆ |
| P9-50 | 故障保护动作选择 4 | 个位:速度偏差过大(42) 0:自由停车 1:按停机方式停机 2:继续运行 十位:电机超速度(43) 百位:初始位置错误(51) | 00000 | ☆ |
| P9-54 | 故障时继续运行频率选择 | 0:以当前的运行频率运行 1:以设定频率运行 2:以上限频率运行 3:以下限频率运行 4:以异常备用频率运行 | 0 | ☆ |
| P9-55 | 异常备用频率 | 60.0%~100.0%(100.0%对应最大频率 P0-10) | 100.0% | ☆ |
| P9-56 | 电机温度传感器类型 | 0:无温度传感器 1:PT100 2:PT1000 | 0 | ☆ |
| P9-57 | 电机过热保护阈值 | 0℃~200℃ | 110℃ | ☆ |
| P9-58 | 电机过热预报警阈值 | 0℃~200℃ | 90℃ | ☆ |
| P9-59 | 瞬时停电动作选择 | 0:无效 1:减速 2:减速停机 | 0 | ☆ |
| P9-60 | 瞬停动作暂停判断电压 | P9-62~100.0% | 100.0% | ☆ |
| P9-61 | 瞬时停电电压回升判断时间 | 0.00s~100.00s | 0.50s | ☆ |
| P9-62 | 瞬时停电动作判断电压 | 60.0%~100.0%(标准母线电压) | 80.0% | ☆ |
| P9-63 | 掉载保护选择 | 0:无效 1:有效 | 0 | ☆ |
| P9-64 | 掉载检测水平 | 0.0~100.0% | 10.0% | ☆ |
| P9-65 | 掉载检测时间 | 0.0~60.0s | 1.0s | ☆ |
| P9-67 | 过速度检测值 | 0.0%~50.0%(最大频率) | 20.0% | ☆ |
| P9-68 | 过速度检测时间 | 0.0s~60.0s | 1.0s | ☆ |
| P9-69 | 速度偏差过大检测值 | 0.0%~50.0%(最大频率) | 20.0% | ☆ |
| P9-70 | 速度偏差过大检测时间 | 0.0s~60.0s | 5.0s | ☆ |
PA 组 PID 功能
| 功能码 | 名称 | 设定范围 | 出厂值 | 更改 |
|---|---|---|---|---|
| PA-00 | PID 给定源 | 0:PA-01 设定 1:AI1 2:AI2 3:AI3 4:PULSE 脉冲设定(DI5) 5:通讯给定 6:多段指令给定 7:由供水组 b0-01 压力给定 | 0 | ☆ |
| PA-01 | PID 数值给定 | 0.0%~100.0% | 50.0% | ☆ |
| PA-02 | PID 反馈源 | 0:AI1 1:AI2 2:AI3 3:AI1 - AI2 4:PULSE 脉冲设定(DI5) 5:通讯给定 6:AI1 + AI2 7:MAX( | AI1 | , |
| PA-03 | PID 作用方向 | 0:正作用 1:反作用 | 0 | ☆ |
| PA-04 | PID 给定反馈量程 | 0~65535 | 1000 | ☆ |
| PA-05 | 比例增益 KP1 | 0.0~100.0 | 20.0 | ☆ |
| PA-06 | 积分时间 Ti1 | 0.01s~10.00s | 2.00s | ☆ |
| PA-07 | 微分时间 Td1 | 0.000s~10.000s | 0.000s | ☆ |
| PA-08 | PID 反转截止频率 | 0.00~最大频率 | 2.00Hz | ☆ |
| PA-09 | PID 偏差极限 | 0.0%~100.0% | 0.0% | ☆ |
| PA-10 | PID 微分限幅 | 0.00%~100.00% | 0.10% | ☆ |
| PA-11 | PID 给定变化时间 | 0.00~650.00s | 0.00s | ☆ |
| PA-12 | PID 反馈滤波时间 | 0.00~60.00s | 0.00s | ☆ |
| PA-13 | PID 输出滤波时间 | 0.00~60.00s | 0.00s | ☆ |
| PA-14 | 保留 | - | - | ☆ |
| PA-15 | 比例增益 KP2 | 0.0~100.0 | 20.0 | ☆ |
| PA-16 | 积分时间 Ti2 | 0.01s~10.00s | 2.00s | ☆ |
| PA-17 | 微分时间 Td2 | 0.000s~10.000s | 0.000s | ☆ |
| PA-18 | PID 参数切换条件 | 0:不切换 1:通过 DI 端子切换 2:根据偏差自动切换 | 0 | ☆ |
| PA-19 | PID 参数切换偏差 1 | 0.0%~PA-20 | 20.0% | ☆ |
| PA-20 | PID 参数切换偏差 2 | PA-19~100.0% | 80.0% | ☆ |
| PA-21 | PID 初值 | 0.0%~100.0% | 0.0% | ☆ |
| PA-22 | PID 初值保持时间 | 0.00~650.00s | 0.00s | ☆ |
| PA-23 | 两次输出偏差正向最大值 | 0.00%~100.00% | 1.00% | ☆ |
| PA-24 | 两次输出偏差反向最大值 | 0.00%~100.00% | 1.00% | ☆ |
| PA-25 | PID 积分属性 | 个位:积分分离 0:无效 1:有效 十位:输出到限值后是否停止积分 0:继续积分 1:停止积分 | 00 | ☆ |
| PA-26 | PID 反馈丢失检测值 | 0.0%:不判断反馈丢失 0.1%~100.0% | 0.0% | ☆ |
| PA-27 | PID 反馈丢失检测时间 | 0.0s~20.0s | 0.0s | ☆ |
| PA-28 | PID 停机运算 | 0:停机不运算 1:停机时运算 | 0 | ☆ |
Pb 组 摆频、定长和计数
| 功能码 | 名称 | 设定范围 | 出厂值 | 更改 |
|---|---|---|---|---|
| Pb-00 | 摆频设定方式 | 0:相对于中心频率 1:相对于最大频率 | 0 | ☆ |
| Pb-01 | 摆频幅度 | 0.0%~100.0% | 0.0% | ☆ |
| Pb-02 | 突跳频率幅度 | 0.0%~50.0% | 0.0% | ☆ |
| Pb-03 | 摆频周期 | 0.1s~3000.0s | 10.0s | ☆ |
| Pb-04 | 摆频的三角波上升时间 | 0.1%~100.0% | 50.0% | ☆ |
| Pb-05 | 设定长度 | 0m~65535m | 1000m | ☆ |
| Pb-06 | 实际长度 | 0m~65535m | 0m | ☆ |
| Pb-07 | 每米脉冲数 | 0.1~6553.5 | 100.0 | ☆ |
| Pb-08 | 设定计数值 | 1~65535 | 1000 | ☆ |
| Pb-09 | 指定计数值 | 1~65535 | 1000 | ☆ |
PC 组 多段指令、简易 PLC
| 功能码 | 名称 | 设定范围 | 出厂值 | 更改 |
|---|---|---|---|---|
| PC-00 | 多段指令 0 | -100.0%~100.0% | 0.0% | ☆ |
| PC-01 | 多段指令 1 | -100.0%~100.0% | 0.0% | ☆ |
| PC-02 | 多段指令 2 | -100.0%~100.0% | 0.0% | ☆ |
| PC-03 | 多段指令 3 | -100.0%~100.0% | 0.0% | ☆ |
| PC-04 | 多段指令 4 | -100.0%~100.0% | 0.0% | ☆ |
| PC-05 | 多段指令 5 | -100.0%~100.0% | 0.0% | ☆ |
| PC-06 | 多段指令 6 | -100.0%~100.0% | 0.0% | ☆ |
| PC-07 | 多段指令 7 | -100.0%~100.0% | 0.0% | ☆ |
| PC-08 | 多段指令 8 | -100.0%~100.0% | 0.0% | ☆ |
| PC-09 | 多段指令 9 | -100.0%~100.0% | 0.0% | ☆ |
| PC-10 | 多段指令 10 | -100.0%~100.0% | 0.0% | ☆ |
| PC-11 | 多段指令 11 | -100.0%~100.0% | 0.0% | ☆ |
| PC-12 | 多段指令 12 | -100.0%~100.0% | 0.0% | ☆ |
| PC-13 | 多段指令 13 | -100.0%~100.0% | 0.0% | ☆ |
| PC-14 | 多段指令 14 | -100.0%~100.0% | 0.0% | ☆ |
| PC-15 | 多段指令 15 | -100.0%~100.0% | 0.0% | ☆ |
| PC-16 | 简易 PLC 运行方式 | 0:单次运行结束停机 1:单次运行结束保持终值 2:一直循环 | 0 | ☆ |
| PC-17 | 简易 PLC 掉电记忆选择 | 个位:掉电记忆选择 0:掉电不记忆 1:掉电记忆 十位:停机记忆选择 0:停机不记忆 1:停机记忆 | 00 | ☆ |
| PC-18 | 简易 PLC 第 0 段运行时间 | 0.0s(h)~6553.5s(h) | 0.0s(h) | ☆ |
| PC-19 | 简易 PLC 第 0 段加减速时间选择 | 0~3 | 0 | ☆ |
| PC-20 | 简易 PLC 第 1 段运行时间 | 0.0s(h)~6553.5s(h) | 0.0s(h) | ☆ |
| PC-21 | 简易 PLC 第 1 段加减速时间选择 | 0~3 | 0 | ☆ |
| PC-22 | 简易 PLC 第 2 段运行时间 | 0.0s(h)~6553.5s(h) | 0.0s(h) | ☆ |
| PC-23 | 简易 PLC 第 2 段加减速时间选择 | 0~3 | 0 | ☆ |
| PC-24 | 简易 PLC 第 3 段运行时间 | 0.0s(h)~6553.5s(h) | 0.0s(h) | ☆ |
| PC-25 | 简易 PLC 第 3 段加减速时间选择 | 0~3 | 0 | ☆ |
| PC-26 | 简易 PLC 第 4 段运行时间 | 0.0s(h)~6553.5s(h) | 0.0s(h) | ☆ |
| PC-27 | 简易 PLC 第 4 段加减速时间选择 | 0~3 | 0 | ☆ |
| PC-28 | 简易 PLC 第 5 段运行时间 | 0.0s(h)~6553.5s(h) | 0.0s(h) | ☆ |
| PC-29 | 简易 PLC 第 5 段加减速时间选择 | 0~3 | 0 | ☆ |
| PC-30 | 简易 PLC 第 6 段运行时间 | 0.0s(h)~6553.5s(h) | 0.0s(h) | ☆ |
| PC-31 | 简易 PLC 第 6 段加减速时间选择 | 0~3 | 0 | ☆ |
| PC-32 | 简易 PLC 第 7 段运行时间 | 0.0s(h)~6553.5s(h) | 0.0s(h) | ☆ |
| PC-33 | 简易 PLC 第 7 段加减速时间选择 | 0~3 | 0 | ☆ |
| PC-34 | 简易 PLC 第 8 段运行时间 | 0.0s(h)~6553.5s(h) | 0.0s(h) | ☆ |
| PC-35 | 简易 PLC 第 8 段加减速时间选择 | 0~3 | 0 | ☆ |
| PC-36 | 简易 PLC 第 9 段运行时间 | 0.0s(h)~6553.5s(h) | 0.0s(h) | ☆ |
| PC-37 | 简易 PLC 第 9 段加减速时间选择 | 0~3 | 0 | ☆ |
| PC-38 | 简易 PLC 第 10 段运行时间 | 0.0s(h)~6553.5s(h) | 0.0s(h) | ☆ |
| PC-39 | 简易 PLC 第 10 段加减速时间选择 | 0~3 | 0 | ☆ |
| PC-40 | 简易 PLC 第 11 段运行时间 | 0.0s(h)~6553.5s(h) | 0.0s(h) | ☆ |
| PC-41 | 简易 PLC 第 11 段加减速时间选择 | 0~3 | 0 | ☆ |
| PC-42 | 简易 PLC 第 12 段运行时间 | 0.0s(h)~6553.5s(h) | 0.0s(h) | ☆ |
| PC-43 | 简易 PLC 第 12 段加减速时间选择 | 0~3 | 0 | ☆ |
| PC-44 | 简易 PLC 第 13 段运行时间 | 0.0s(h)~6553.5s(h) | 0.0s(h) | ☆ |
| PC-45 | 简易 PLC 第 13 段加减速时间选择 | 0~3 | 0 | ☆ |
| PC-46 | 简易 PLC 第 14 段运行时间 | 0.0s(h)~6553.5s(h) | 0.0s(h) | ☆ |
| PC-47 | 简易 PLC 第 14 段加减速时间选择 | 0~3 | 0 | ☆ |
| PC-48 | 简易 PLC 第 15 段运行时间 | 0.0s(h)~6553.5s(h) | 0.0s(h) | ☆ |
| PC-49 | 简易 PLC 第 15 段加减速时间选择 | 0~3 | 0 | ☆ |
| PC-50 | 简易 PLC 运行时间单位 | 0:s(秒) 1:h(小时) | 0 | ☆ |
| PC-51 | 多段指令 0 给定方式 | 0:功能码 PC-00 给定 1:AI1 2:AI2 3:AI3 4:PULSE 脉冲 5:PID 6:预置频率(P0-08)给定,UP/DOWN 可修改 | 0 | ☆ |
Pd 组 通讯参数
| 功能码 | 名称 | 设定范围 | 出厂值 | 更改 |
|---|---|---|---|---|
| Pd-00 | 波特率 | 个位:MODBUS 0:300BPS 1:600BPS 2:1200BPS 3:2400BPS 4:4800BPS 5:9600BPS 6:19200BPS 7:38400BPS 8:57600BPS 9:115200BPS 十位:ProPibus-DP 0:115200BPs 1:208300BPs 2:256000BPs 3:512000Bps 百位:保留 千位:CANlink 波特率 0:20 1:50 2:100 3:125 4:250 5:500 6:1M | 6005 | ☆ |
| Pd-01 | 数据格式 | 0:无校验(8-N-2) 1:偶校验(8-E-1) 2:奇校验(8-O-1) 3:8-N-1 | 0 | ☆ |
| Pd-02 | 本机地址 | 1~247 | 1 | ☆ |
| Pd-03 | 应答延迟 | 0ms~20ms | 2 | ☆ |
| Pd-04 | 通讯超时时间 | 0.0(无效),0.1s~60.0s | 0.0 | ☆ |
| Pd-05 | 数据传送格式选择 | 个位:MODBUS 0:非标准的 MODBUS 协议 1:标准的 MODBUS 协议 十位:Profibus-DP 0:PPO1 格式 1:PPO2 格式 2:PPO3 格式 3:PPO5 格式 | 30 | ☆ |
| Pd-06 | 通讯读取电流分辨率 | 0:0.01A 1:0.1A | 0 | ☆ |
| Pd-07 | 主从选择 | 0:主机 1:从机 | 0 | ☆ |
PE 组 用户定制功能码
| 功能码 | 名称 | 设定范围 | 出厂值 | 更改 |
|---|---|---|---|---|
| PE-00 | 用户功能码 0 | P0-00~PP-xx A0-00~Ax-xx U0-xx~U0-xx | P0.01 | ☆ |
| PE-01 | 用户功能码 1 | P0.02 | ☆ | |
| PE-02 | 用户功能码 2 | P0.03 | ☆ | |
| PE-03 | 用户功能码 3 | P0.07 | ☆ | |
| PE-04 | 用户功能码 4 | P0.08 | ☆ | |
| PE-05 | 用户功能码 5 | P0.17 | ☆ | |
| PE-06 | 用户功能码 6 | P0.18 | ☆ | |
| PE-07 | 用户功能码 7 | P3.00 | ☆ | |
| PE-08 | 用户功能码 8 | P3.01 | ☆ | |
| PE-09 | 用户功能码 9 | P4.00 | ☆ | |
| PE-10 | 用户功能码 10 | P4.01 | ☆ | |
| PE-11 | 用户功能码 11 | P4.02 | ☆ | |
| PE-12 | 用户功能码 12 | P5.04 | ☆ | |
| PE-13 | 用户功能码 13 | P5.07 | ☆ | |
| PE-14 | 用户功能码 14 | P6.00 | ☆ | |
| PE-15 | 用户功能码 15 | P6.10 | ☆ | |
| PE-16 | 用户功能码 16 | P0.00 | ☆ | |
| PE-17 | 用户功能码 17 | P0.00 | ☆ | |
| PE-18 | 用户功能码 18 | P0.00 | ☆ | |
| PE-19 | 用户功能码 19 | P0.00 | ☆ | |
| PE-20 | 用户功能码 20 | P0.00 | ☆ | |
| PE-21 | 用户功能码 21 | P0.00 | ☆ | |
| PE-22 | 用户功能码 22 | P0.00 | ☆ | |
| PE-23 | 用户功能码 23 | P0.00 | ☆ | |
| PE-24 | 用户功能码 24 | P0.00 | ☆ | |
| PE-25 | 用户功能码 25 | P0.00 | ☆ | |
| PE-26 | 用户功能码 26 | P0.00 | ☆ | |
| PE-27 | 用户功能码 27 | P0.00 | ☆ | |
| PE-28 | 用户功能码 28 | P0.00 | ☆ | |
| PE-29 | 用户功能码 29 | P0.00 | ☆ |
PP 组 功能码管理
| 功能码 | 名称 | 设定范围 | 出厂值 | 更改 |
|---|---|---|---|---|
| PP-00 | 用户密码 | 0~65535 | 0 | ☆ |
| PP-01 | 参数初始化 | 0:无操作 01:恢复出厂参数,不包括电机参数 02:清除记录信息 04:恢复用户备份参数 501:备份用户当前参数 | 0 | ★ |
| PP-02 | 功能参数组显示选择 | 个位:U 组显示选择 0:不显示 1:显示 十位:A 组显示选择 0:不显示 1:显示 | 11 | ★ |
| PP-03 | 个性参数组显示选择 | 个位:用户定制参数组显示选择 0:不显示 1:显示 十位:用户变更参数组显示选择 0:不显示 1:显示 | 00 | ☆ |
| PP-04 | 功能码修改属性 | 0:可修改 1:不可修改 | 0 | ☆ |
A0 组 转矩控制参数
| 功能码 | 名称 | 设定范围 | 出厂值 | 更改 |
|---|---|---|---|---|
| A0-00 | 速度/转矩控制方式选择 | 0:速度控制 1:转矩控制 | 0 | ★ |
| A0-01 | 转矩控制方式下转矩设定源选择 | 0:数字设定 1(A0-03) 1:AI1 2:AI2 3:AI3 4:PULSE 脉冲 5:通讯给定 6:MIN(AI1,AI2) 7:MAX(AI1,AI2)(1-7 选项的满量程,对应 A0-03 数字设定) | 0 | ★ |
| A0-03 | 转矩控制方式下转矩数字设定 | -200.0%~200.0% | 150.0% | ☆ |
| A0-05 | 转矩控制正向最大频率 | 0.00Hz~最大频率 | 50.00Hz | ☆ |
| A0-06 | 转矩控制反向最大频率 | 0.00Hz~最大频率 | 50.00Hz | ☆ |
| A0-07 | 转矩控制加速时间 | 0.00s~65000s | 0.00s | ☆ |
| A0-08 | 转矩控制减速时间 | 0.00s~65000s | 0.00s | ☆ |
A1 组 虚拟 IO
| 功能码 | 名称 | 设定范围 | 出厂值 | 更改 |
|---|---|---|---|---|
| A1-00 | 虚拟 VDI1 端子功能选择 | 0~59 | 0 | ★ |
| A1-01 | 虚拟 VDI2 端子功能选择 | 0~59 | 0 | ★ |
| A1-02 | 虚拟 VDI3 端子功能选择 | 0~59 | 0 | ★ |
| A1-03 | 虚拟 VDI4 端子功能选择 | 0~59 | 0 | ★ |
| A1-04 | 虚拟 VDI5 端子功能选择 | 0~59 | 0 | ★ |
| A1-05 | 虚拟 VDI 端子状态设置模式 0:由虚拟 VDOx 的状态决定 VDI 是否有效 1:由功能码 A1-06 设定 VDI 是否有效 个位:虚拟 VDI1 十位:虚拟 VDI2 百位:虚拟 VDI3 千位:虚拟 VDI4 万位:虚拟 VDI5 | 00000 | ★ | |
| A1-06 | 虚拟 VDI 端子状态设置 | 0 :无效 1 :有效 个位:虚拟 VDI1 十位:虚拟 VDI2 百位:虚拟 VDI3 千位:虚拟 VDI4 万位:虚拟 VDI5 | 00000 | ★ |
| A1-07 | AI1 端子作为 DI 时的功能选择 | 0 - 59 | 0 | ★ |
| A1-08 | AI2 端子作为 DI 时的功能选择 | 0 - 59 | 0 | ★ |
| A1-09 | AI3 端子作为 DI 时的功能选择 | 0 - 59 | 0 | ★ |
| A1-10 | AI 端子作为 DI 时有效模式 选择 | 0 :高电平有效 1 :低电平有效 个位: AI1 十位: AI2 百位: AI3 | 000 | ★ |
| A1-11 | 虚拟 VDO1 输出功能选择 | 0 :与物理 DIx 内部短接 1 - 41 :见 P5 组物理 DO 输出选择 | 0 | ☆ |
| A1-12 | 虚拟 VDO2 输出功能选择 | 0 :与物理 DIx 内部短接 1 - 41 :见 P5 组物理 DO 输出选择 | 0 | ☆ |
| A1-13 | 虚拟 VDO3 输出功能选择 | 0 :与物理 DIx 内部短接 1 - 41 :见 P5 组物理 DO 输出选择 | 0 | ☆ |
| A1-14 | 虚拟 VDO4 输出功能选择 | 0 :与物理 DIx 内部短接 1 - 41 :见 P5 组物理 DO 输出选择 | 0 | ☆ |
| A1-15 | 虚拟 VDO5 输出功能选择 | 0 :与物理 DIx 内部短接 1 - 41 :见 P5 组物理 DO 输出选择 | 0 | ☆ |
| A1-16 | VDO1 输出延迟时间 | 0.0s - 3600.0s | 0.0s | ☆ |
| A1-17 | VDO2 输出延迟时间 | 0.0s - 3600.0s | 0.0s | ☆ |
| A1-18 | VDO3 输出延迟时间 | 0.0s - 3600.0s | 0.0s | ☆ |
| A1-19 | VDO4 输出延迟时间 | 0.0s - 3600.0s | 0.0s | ☆ |
| A1-20 | VDO5 输出延迟时间 | 0.0s - 3600.0s | 0.0s | ☆ |
| A1-21 | VDO 输出端子有效状态选择 | 0 :正逻辑 1 :反逻辑 个位: VDO1 十位: VDO2 百位: VDO3 千位: VDO4 万位: VDO5 | 00000 | ☆ |
A5 组 控制优化参数
| 功能码 | 名称 | 设定范围 | 出厂值 | 更改 |
|---|---|---|---|---|
| A5-00 | DPWM 切换上限频率 | 0.00Hz - 15.00Hz | 12.00Hz | ☆ |
| A5-01 | PWM 调制方式 | 0 :异步调制 1 :同步调制 | 0 | ☆ |
| A5-02 | 死区补偿模式选择 | 0 :不补偿 1 :补偿模式 1 2 :补偿模式 2 | 1 | ☆ |
| A5-03 | 随机 PWM 深度 | 0 :随机 PWM 无效 1 - 10 : PWM 载频随机深度 | 0 | ☆ |
| A5-04 | 快速限流使能 | 0 :不使能 1 :使能 | 1 | ☆ |
| A5-05 | 电流检测补偿 | 0 - 100 | 5 | ☆ |
| A5-06 | 欠压点设置 | 60.0% - 140.0% | 100.0% | ☆ |
| A5-07 | SVC 优化模式选择 | 0 :不优化 1 :优化模式 1 2 :优化模式 2 | 1 | ☆ |
| A5-08 | 死区时间调整 | 100% - 200% | 150% | ☆ |
| A5-09 | 过压点设定 | 200.0-2500.0V | 机型定 | ★ |
A6 组 AI 曲线设定
| 功能码 | 名称 | 设定范围 | 出厂值 | 更改 |
|---|---|---|---|---|
| A6-00 | AI 曲线 4 最小输入 | -10.00V - A6-02 | 0.00V | ☆ |
| A6-01 | AI 曲线 4 最小输入对应设定 | -100.0% - +100.0% | 0.0% | ☆ |
| A6-02 | AI 曲线 4 拐点 1 输入 | A6-00 - A6-04 | 3.00V | ☆ |
| A6-03 | AI 曲线 4 拐点 1 输入对应设定 | -100.0% - +100.0% | 30.0% | ☆ |
| A6-04 | AI 曲线 4 拐点 2 输入 | A6-02 - A6-06 | 6.00V | ☆ |
| A6-05 | AI 曲线 4 拐点 2 输入对应设定 | -100.0% - +100.0% | 60.0% | ☆ |
| A6-06 | AI 曲线 4 最大输入 | A6-06 - +10.00V | 10.00V | ☆ |
| A6-07 | AI 曲线 4 最大输入对应设定 | -100.0% - +100.0% | 100.0% | ☆ |
| A6-08 | AI 曲线 5 最小输入 | -10.00V - A6-10 | -10.00V | ☆ |
| A6-09 | AI 曲线 5 最小输入对应设定 | -100.0% - +100.0% | -100.0% | ☆ |
| A6-10 | AI 曲线 5 拐点 1 输入 | A6-08 - A6-12 | -3.00V | ☆ |
| A6-11 | AI 曲线 5 拐点 1 输入对应设定 | -100.0% - +100.0% | -30.0% | ☆ |
| A6-12 | AI 曲线 5 拐点 2 输入 | A6-10 - A6-14 | 3.00V | ☆ |
| A6-13 | AI 曲线 5 拐点 2 输入对应设定 | -100.0% - +100.0% | 30.0% | ☆ |
| A6-14 | AI 曲线 5 最大输入 | A6-12 - +10.00V | 10.00V | ☆ |
| A6-15 | AI 曲线 5 最大输入对应设定 | -100.0%~+100.0% | 100.0% | ☆ |
| A6-24 | AI1 设定跳跃点 | -100.0%~100.0% | 0.0% | ☆ |
| A6-25 | AI1 设定跳跃幅度 | 0.0%~100.0% | 0.5% | ☆ |
| A6-26 | AI2 设定跳跃点 | -100.0%~100.0% | 0.0% | ☆ |
| A6-27 | AI2 设定跳跃幅度 | 0.0%~100.0% | 0.5% | ☆ |
| A6-28 | AI3 设定跳跃点 | -100.0%~100.0% | 0.0% | ☆ |
| A6-29 | AI3 设定跳跃幅度 | 0.0%~100.0% | 0.5% | ☆ |
A7 组 | 用户可编程卡
| 功能码 | 名称 | 设定范围 | 出厂值 | 更改 |
|---|---|---|---|---|
| A7-00 | 用户可编程功能选择 | 0:无效 1:有效 0:变频器控制 1:用户可编程控制卡控制 个位:FMP(FM 端子作为脉冲输出) 十位:继电器(T/A-T/B-T/C) 百位:DO1 万位:AO1 千位:FMR(FM 端子作为开关量输出) | 0 | ★ |
| A7-01 | 控制板输出端子控制模式选择 | 0:AI3 电压输入,AO2 电压输出 1:AI3 电压输入,AO2 电流输出 2:AI3 电流输入,AO2 电压输出 3:AI3 电流输入,AO2 电流输出 4:AI3 PTC 输入,AO2 电压输出 5:AI3 PTC 输入,AO2 电流输出 6:AI3 PT100 输入,AO2 电压输出 7:AI3 PT100 输入,AO2 电流输出 | 0 | ★ |
| A7-02 | 可编程卡扩展 AI3 端子功能配置 | 0 | ★ | |
| A7-03 | FMP 输出 | 0.0%~100.0% | 0.0% | ☆ |
| A7-04 | AO1 输出 | 0.0%~100.0% | 0.0% | ☆ |
| A7-05 | 开关量输出 | 个位:FMR 十位:继电器 百位:DO 二进制设定 | 1 | ☆ |
| A7-06 | 可编程卡频率给定 | 0.00%~100.00% | 0.0% | ☆ |
| A7-07 | 可编程卡转矩给定 | -200.0%~200.0% | 0.0% | ☆ |
| A7-08 | 可编程卡命令给定 | 0:无命令 1:正转命令 2:反转命令 3:正转点动 4:反转点动 5:自由停机 6:减速停机 7:故障复位 | 0 | ☆ |
| A7-09 | 可编程卡给定故障 | 0:无故障 80~89:故障编码 | 0 | ☆ |
AC 组 AIAO 校正
| 功能码 | 名称 | 设定范围 | 出厂值 | 属性 |
|---|---|---|---|---|
| AC-00 | AI1 实测电压 1 | 0.500V-4.000V | 出厂校正 | ☆ |
| AC-01 | AI1 显示电压 1 | 0.500V-4.000V | 出厂校正 | ☆ |
| AC-02 | AI1 实测电压 2 | 6.000V-9.999V | 出厂校正 | ☆ |
| AC-03 | AI1 显示电压 2 | 6.000V-9.999V | 出厂校正 | ☆ |
| AC-04 | AI2 实测电压 1 | 0.500V-4.000V | 出厂校正 | ☆ |
| AC-05 | AI2 显示电压 1 | 0.500V-4.000V | 出厂校正 | ☆ |
| AC-06 | AI2 实测电压 2 | 6.000V-9.999V | 出厂校正 | ☆ |
| AC-07 | AI2 显示电压 2 | 6.000V-9.999V | 出厂校正 | ☆ |
| AC-08 | AI3 实测电压 1 | -9.999V-10.000V | 出厂校正 | ☆ |
| AC-09 | AI3 显示电压 1 | -9.999V-10.000V | 出厂校正 | ☆ |
| AC-10 | AI3 实测电压 2 | -9.999V-10.000V | 出厂校正 | ☆ |
| AC-11 | AI3 显示电压 2 | -9.999V-10.000V | 出厂校正 | ☆ |
| AC-12 | AO1 目标电压 1 | 0.500V-4.000V | 出厂校正 | ☆ |
| AC-13 | AO1 实测电压 1 | 0.500V-4.000V | 出厂校正 | ☆ |
| AC-14 | AO1 目标电压 2 | 6.000V-9.999V | 出厂校正 | ☆ |
| AC-15 | AO1 实测电压 2 | 6.000V-9.999V | 出厂校正 | ☆ |
| AC-16 | AO2 目标电压 1 | 0.500V-4.000V | 出厂校正 | ☆ |
| AC-17 | AO2 实测电压 1 | 0.500V-4.000V | 出厂校正 | ☆ |
| AC-18 | AO2 目标电压 2 | 6.000V-9.999V | 出厂校正 | ☆ |
| AC-19 | AO2 实测电压 2 | 6.000V-9.999V | 出厂校正 | ☆ |
b0 组 智能恒压供水参数表
| 功能码 | 名称 | 设定范围 | 出厂值 | 属性 |
|---|---|---|---|---|
| b0-00 | 压力传感器量程 | 0-99.99Bar(kg) | 10.00 | ☆ |
| b0-01 | 目标压力数字给定 注:目标压力由 PA-01 选定 | 0-99.99Bar(kg) | 5.00 | ☆ |
| b0-02 | 休眠压力 | 0-100.0% (以目标压力比列联动) | 100.0% | ☆ |
| b0-03 | 唤醒压力 | 0-100.0% (以目标压力比列联动) | 95.0% | ☆ |
| b0-04 | 压力稳定偏差量 | 0-100.0% (以目标压力比列联动) | 2.0% | ☆ |
| b0-05 | 休眠延时 | 0-6553.5s (0:关闭休眠) | 20.0s | ☆ |
| b0-06 | 唤醒延时 | 0-6553.5s | 0.0s | ☆ |
| b0-07 | 压力上限保护值 | 0-200.0% (以目标压力比列联动) | 110.0% | ☆ |
| b0-08 | 压力上限保护停机延时 | 0-6553.5s (0:关闭检测) | 0.3s | ☆ |
| b0-09 | 下限频率超目标压力保护延时 | 0-6553.5s (0:关闭检测) | 3.0s | ☆ |
| b0-10 | 辅泵数量设定 | 0-4 (0:关闭一拖多) | 0 | ☆ |
| b0-11 | 加辅泵压力容差 | 0 - 100.0% ( 以目标压力比列联动 ) | 5.0% | ☆ |
| b0-12 | 加辅泵延时 | 0 - 6553.5s | 30.0s | ☆ |
| b0-13 | 减辅泵压力容差 | 0 - 100.0% ( 以目标压力比列联动 ) | 5.0% | ☆ |
| b0-14 | 减辅泵延时 | 0 - 6553.5s | 30.0s | ☆ |
| b0-15 | 压力上限紧急减辅泵延时 ( 抢占 b0-14 的正常减泵时间 ) | 0 - 6553.5s | 3.0s | ☆ |
U0 组 基本监视参数
| 功能码 | 名称 | 最小单位 | 通讯地址 |
|---|---|---|---|
| U0-00 | 运行频率( Hz ) | 0.01Hz | 7000H |
| U0-01 | 设定频率( Hz ) | 0.01Hz | 7001H |
| U0-02 | 母线电压( V ) | 0.1V | 7002H |
| U0-03 | 输出电压( V ) | 1V | 7003H |
| U0-04 | 输出电流( A ) | 0.01A | 7004H |
| U0-05 | 输出功率( kW ) | 0.1kW | 7005H |
| U0-06 | 输出转矩( % ) | 0.1% | 7006H |
| U0-07 | DI 输入状态 | 1 | 7007H |
| U0-08 | DO 输出状态 | 1 | 7008H |
| U0-09 | AI1 电压( V ) | 0.01V | 7009H |
| U0-10 | AI2 电压( V ) | 0.01V | 700AH |
| U0-11 | AI3 电压( V ) | 0.01V | 700BH |
| U0-12 | 计数值 | 1 | 700CH |
| U0-13 | 长度值 | 1 | 700DH |
| U0-14 | 负载速度显示 | 1 | 700EH |
| U0-15 | PID 设定 | 1 | 700FH |
| U0-16 | PID 反馈 | 1 | 7010H |
| U0-17 | PLC 阶段 | 1 | 7011H |
| U0-18 | PULSE 输入脉冲频率( Hz ) | 0.01kHz | 7012H |
| U0-19 | 反馈速度(单位 0.1Hz ) | 0.1Hz | 7013H |
| U0-20 | 剩余运行时间 | 0.1Min | 7014H |
| U0-21 | AI1 校正前电压 | 0.001V | 7015H |
| U0-22 | AI2 校正前电压 | 0.001V | 7016H |
| U0-23 | AI3 校正前电压 | 0.001V | 7017H |
| U0-24 | 线速度 | 1m/Min | 7018H |
| U0-25 | 当前上电时间 | 1Min | 7019H |
| U0-26 | 当前运行时间 | 0.1Min | 701AH |
| U0-27 | PULSE 输入脉冲频率 | 1Hz | 701BH |
| U0-28 | 通讯设定值 | 0.01% | 701CH |
| U0-29 | 编码器反馈速度 | 0.01Hz | 701DH |
| U0-30 | 主频率 X 显示 | 0.01Hz | 701EH |
| U0-31 | 辅频率 Y 显示 | 0.01Hz | 701FH |
| U0-32 | 查看任意内存地址值 | 1 | 7020H |
| U0-33 | 同步机转子位置 | 0.1° | 7021H |
| U0-34 | 电机温度值 | 1 ℃ | 7022H |
| U0-35 | 目标转矩( % ) | 0.1% | 7023H |
| U0-36 | 旋变位置 | 1 | 7024H |
| U0-37 | 功率因素角度 | 0.1° | 7025H |
| U0-38 | ABZ 位置 | 1 | 7026H |
| U0-39 | VF 分离目标电压 | 1V | 7027H |
| U0-40 | VF 分离输出电压 | 1V | 7028H |
| U0-41 | DI 输入状态直观显示 | 1 | 7029H |
| U0-42 | DO 输入状态直观显示 | 1 | 702AH |
| U0-43 | DI 功能状态直观显示 1 (功能 01-40 ) | 1 | 702BH |
| U0-44 | DI 功能状态直观显示 2 (功能 41-80 ) 4440 40 ) | 1 | 702CH |
| U0-45 | 故障信息 | 1 | 702DH |
| U0-58 | Z 信号计数器 | 1 | 703AH |
| U0-59 | 设定频率( % ) | 0.01% | 703BH |
| U0-60 | 运行频率( % ) | 0.01% | 703CH |
| U0-61 | 变频器状态 | 1 | 703DH |
| U0-62 | 当前故障编码 | 1 | 703EH |
| U0-63 | 点对点主机通讯发送数据 | 0.01% | 703FH |
| U0-64 | 点对点从机通讯接收数据 | 0.01% | 7040H |
| U0-65 | 转矩上限 | 0.1% | 7041H |
9.变频器故障诊断及对策
9.1 故障报警及对策
SK600系列变频器共有 24 项警示信息及保护功能,一旦故障发生,保护功能动作,变频器停止输出,变频器故障继电器接点动作,并在变频器显示面板上显示故障代码。用户在寻求服务之前,可以先按本节提示进行自查,分析故障原因,找出解决方法。如果属于虚线框内所述原因,请寻求服务,与您所购变频器的代理商或直接与我公司联系。
21 项警示信息中 Err22 为硬件过流或过压信号,大部分情况下硬件过压故障造成 Err22 报警。
| 故障名称 | 操作面板显示 | 故障原因排查 | 故障处理对策 |
|---|---|---|---|
| 逆变单元保护 | Err01 | 1、变频器输出回路短路 2、电机和变频器接线过长 3、模块过热 4、变频器内部接线松动 5、主控板异常 6、驱动板异常 7、逆变模块异常 | 1、排除外围故障 2、加装电抗器或输出滤波器 3、检查风道是否堵塞、风扇是否正常工作并排除存在问题 4、插好所有连接线 5、寻求技术支持 6、寻求技术支持 7、寻求技术支持 |
| 加速过电流 | Err02 | 1、变频器输出回路存在接地或短路 2、控制方式为矢量且没有进行参数辨识 3、加速时间太短 4、手动转矩提升或 V/F 曲线不合适 5、电压偏低 6、对正在旋转的电机进行启动 7、加速过程中突加负载 8、变频器选型偏小 | 1、排除外围故障 2、进行电机参数辨识 3、增大加速时间 4、调整手动提升转矩或 V/F 曲线 5、将电压调至正常范围 6、选择转速追踪启动或等电机停止后再启动 7、取消突加负载 8、选用功率等级更大的变频器 |
| 减速过电流 | Err03 | 1、变频器输出回路存在接地或短路 2、控制方式为矢量且没有进行参数辨识 3、减速时间太短 4、电压偏低 5、减速过程中突加负载 6、没有加装制动单元和制动电阻 | 1、排除外围故障 2、进行电机参数辨识 3、增大减速时间 4、将电压调至正常范围 5、取消突加负载 6、加装制动单元及电阻 |
| 恒速过电流 | Err04 | 1、变频器输出回路存在接地或短路 2、控制方式为矢量且没有进行参数辨识 3、电压偏低 4、运行中是否有突加负载 5、变频器选型偏小 | 1、排除外围故障 2、进行电机参数辨识 3、将电压调至正常范围 4、取消突加负载 5、选用功率等级更大的变频器 |
| 加速过电压 | Err05 | 1、输入电压偏高 2、加速过程中存在外力拖动电机运行 3、加速时间过短 4、没有加装制动单元和制动电阻 | 1、将电压调至正常范围 2、取消此外动力或加装制动电阻 3、增大加速时间 4、加装制动单元及电阻 |
| 恒速过电压 | Err07 | 1、输入电压偏高 2、运行过程中存在外力拖动电机运行 | 1、将电压调至正常范围 2、取消此外动力或加装制动电阻 |
| 控制电源故障 | Err08 | 1、输入电压不在规范规定的范围内 | 1、将电压调至规范要求的范围内 |
| 欠压故障 | Err09 | 1、瞬时停电 2、变频器输入端电压不在规范要求的范围 3、母线电压不正常 4、整流桥及缓冲电阻不正常 5、驱动板异常 6、控制板异常 | 1、复位故障 2、调整电压到正常范围 3、寻求技术支持 4、寻求技术支持 5、寻求技术支持 6、寻求技术支持 |
| 变频器过载 | Err10 | 1、负载是否过大或发生电机堵转 2、变频器选型偏小 | 1、减小负载并检查电机及机械情况 2、选用功率等级更大的变频器 |
| 电机过载 | Err11 | 1、电机保护参数 P9-01 设定是否合适 2、负载是否过大或发生电机堵转 3、变频器选型偏小 | 1、正确设定此参数 2、减小负载并检查电机及机械情况 3、选用功率等级更大的变频器 |
| 输入缺相 | Err12 | 1、三相输入电源不正常 2、驱动板异常 3、防雷板异常 4、主控板异常 | 1、检查并排除外围线路中存在的问题 2、寻求技术支持 3、寻求技术支持 4、寻求技术支持 |
| 输出缺相 | Err13 | 1、变频器到电机的引线不正常 2、电机运行时变频器三相输出不平衡 3、驱动板异常 4、模块异常 | 1、排除外围故障 2、检查电机三相绕组是否正常并排除故障 3、寻求技术支持 4、寻求技术支持 |
| 模块过热 | Err14 | 1、环境温度过高 2、风道堵塞 3、风扇损坏 4、模块热敏电阻损坏 5、逆变模块损坏 | 1、降低环境温度 2、清理风道 3、更换风扇 4、更换热敏电阻 5、更换逆变模块 |
| 外部设备故障 | Err15 | 1、通过多功能端子 DI 输入外部故障的信号 2、通过虚拟 IO 功能输入外部故障的信号 | 1、复位运行 2、复位运行 |
| 通讯故障 | Err16 | 1、上位机工作不正常 2、通讯线不正常 3、通讯扩展卡 P0-28 设置不正确 4、通讯参数 PD 组设置不正确 | 1、检查上位机接线 2、检查通讯连接线 3、正确设置通讯扩展卡类型 4、正确设置通讯参数 |
| 接触器故障 | Err17 | 1、驱动板和电源不正常 2、接触器不正常 | 1、更换驱动板或电源板 2、更换接触器 |
| 电流检测故障 | Err18 | 1、检查霍尔器件异常 2、驱动板异常 | 1、更换霍尔器件 2、更换驱动板 |
| 电机调谐故障 | Err19 | 1、电机参数未按铭牌设置 2、参数辨识过程超时 | 1、根据铭牌正确设定电机参数 2、检查变频器到电机引线 |
| 码盘故障 | Err20 | 1、编码器型号不匹配 2、编码器连线错误 3、编码器损坏 4、PG 卡异常 | 1、根据实际正确设定编码器类型 2、排除线路故障 3、更换编码器 4、更换 PG 卡 |
| EEPROM 读写故障 | Err21 | 1、EEPROM 芯片损坏 | 1、更换主控板 |
| 变频器硬件故障 | Err22 | 1、存在过压 2、存在过流 | 1、按过压故障处理 2、按过流故障处理 |
| 对地短路故障 | Err23 | 1、电机对地短路 | 1、更换电缆或电机 |
| 累计运行时间到达故障 | Err26 | 1、累计运行时间达到设定值 | 1、使用参数初始化功能清除记录信息 |
| 用户自定义故障 1 | Err27 | 1、通过多功能端子 DI 输入用户自定义故障 1 的信号 2、通过虚拟 IO 功能输入用户自定义故障 1 的信号 | 1、复位运行 2、复位运行 |
| 用户自定义故障 2 | Err28 | 1、通过多功能端子 DI 输入用户自定义故障 2 的信号 2、通过虚拟 IO 功能输入用户自定义故障 2 的信号 | 1、复位运行 2、复位运行 |
| 累计上电时间到达故障 | Err29 | 1、累计上电时间达到设定值 | 1、使用参数初始化功能清除记录信息 |
| 掉载故障 | Err30 | 1、变频器运行电流小于 P9-64 | 1、确认负载是否脱离或 P9-64、P9-65 参数设置是否符合实际运行工况 |
| 运行时 PID 反馈丢失故障 | Err31 | 1、PID 反馈小于 PA-26 设定值 | 1、检查 PID 反馈信号或设置 PA-26 为一个合适值 |
| 逐波限流故障 | Err40 | 1、负载是否过大或发生电机堵转 2、变频器选型偏小 | 1、减小负载并检查电机及机械情况 2、选用功率等级更大的变频器 |
| 运行时切换电机故障 | Err41 | 1、在变频器运行过程中通过端子更改当前电机选择 | 1、变频器停机后再进行电机切换操作 |
| 速度偏差过大故障 | Err42 | 1、编码器参数设定不正确 2、没有进行参数辨识 3、速度偏差过大检测参数 P9-69、P9-60 设置不合理 | 1、正确设置编码器参数 2、进行电机参数辨识 3、根据实际情况合理设置检测参数 |
| 电机过速度故障 | Err43 | 1、编码器参数设定不正确 2、没有进行参数辨识 3、电机过速度检测参数 P9-69、P9-60 设置不合理 | 1、正确设置编码器参数 2、进行电机参数辨识 3、根据实际情况合理设置检测参数 |
| 电机过温故障 | Err45 | 1、温度传感器接线松动 2、电机温度过高 | 1、检测温度传感器接线并排除故障 2、降低载频或采取其它散热措施对电机进行散热处理 |
| 初始位置错误 | Err51 | 1、电机参数与实际偏差太大 | 1、重新确认电机参数是否正确,重点关注额定电流是否设定偏小 |
9.2 常见故障及其处理方法
变频器使用过程中可能会遇到下列故障情况,请参考下述方法进行简单故障分析:
| 序号 | 故障现象 | 可能原因 | 解决方法 |
|---|---|---|---|
| 1 | 上电无显示 | 电网电压没有或者过低; 变频器驱动板上的开关电源故障; 整流桥损坏; 变频器缓冲电阻损坏; 控制板、键盘故障; 控制板与驱动板、键盘之间连线断; | 检查输入电源; 检查母线电压; 重新拔插 8 芯和 28 芯排线; 寻求厂家服务; |
| 2 | 上电显示 HC | 驱动板与控制板之间的连线接触不良; 控制板上相关器件损坏; 电机或者电机线有对地短路; 霍尔故障; 电网电压过低; | 重新拔插 8 芯和 28 芯排线; 寻求厂家服务; |
| 3 | 上电显示 “Err23”报警 | 电机或者输出线对地短路; 变频器损坏; | 用摇表测量电机和输出线的绝缘; 寻求厂家服务; |
| 4 | 上电变频器显示正常,运行后显示“HC”并马上停机 | 风扇损坏或者堵转; 外围控制端子接线有短路; | 更换风扇; 排除外部短路故障; |
| 5 | 频繁报 Err14(模块过热)故障 | 载频设置太高。 风扇损坏或者风道堵塞。 变频器内部器件损坏(热电偶或其他) | 降低载频(P0-15)。 更换风扇、清理风道。 寻求厂家服务。 |
| 6 | 变频器运行后电机不转动 | 电机及电机线; 变频器参数设置错误(电机参数); 驱动板与控制板连线接触不良; 驱动板故障; | 重新确认变频器与电机之间连线; 更换电机或清除机械故障; 检查并重新设置电机参数; |
| 7 | DI 端子失效 | 参数设置错误; 外部信号错误; OP 与+24V 跳线松动; 控制板故障; | 检查并重新设置 P4 组相关参数; 重新接外部信号线; 重新确认 OP 与+24V 跳线; 寻求厂家服务; |
| 8 | 闭环矢量控制时,电机速度无法提升。 | 编码器故障; 编码器接错线或者接触不良; PG 卡故障; 驱动板故障; | 更换码盘并重新确认接线; 更换 PG 卡; 寻求服务 |
| 9 | 变频器频繁报过流和过压故障。 | 电机参数设置不对; 加减速时间不合适; 负载波动; | 重新设置电机参数或者进行电机调谐; 设置合适的加减速时间; 寻求厂家服务; |
| 10 | 上电(或运行)报 Err17 | 软启动接触器未吸合; | 检查接触器电缆是否松动; 检查接触器是否有故障; 检查接触器 24V 供电电源是否有故障; 寻求厂家服务; |
| 11 | 上电显示88888 | 控制板上相关器件损坏; | 更换控制板; |
10. RS-485 通讯扩展卡(PC60TX1)使用说明
10.1 概述
为 SK600系列变频器提供 485 通讯功能而专门研制,采用隔离方案,电气参数符合国际标准,用户可根据需要选用,以实现远程串口方式控制变频器运行及参数设定等功能;通讯卡的详情请参考《SK600 串行通讯协议》。
10.2 控制端子功能说明
表 2-1 变频器控制端子功能说明
| 类别 | 端子符号 | 端子名称 | 功能说明 |
|---|---|---|---|
| 电源 | +10V-GND | 外接+10V 电源 | 向外提供+10V 电源,最大输出电流:150mA(带短路保护) 一般用作外接电位器工作电源,电位器阻值范围:1kΩ-5kΩ |
| 电源 | +24V- COM | 外接+24V 电源 | 向外提供+24V 电源,一般用作数字输入输出端子工作电源和外接传感器电源 最大输出电流:200mA |
| 模拟端子 | AI1-GND | 模拟量输入端子 1 | 1、输入范围:DC 0V-10V/0mA-20mA,由 P4-37 决定。 2、输入阻抗:电压输入时 22kΩ,电流输入时 500Ω。 |
| 模拟端子 | AI2-GND | 模拟量输入端子 2 | 1、输入范围:DC 0V-10V/0mA-20mA,由 P4-37 决定。 2、输入阻抗:电压输入时 22kΩ,电流输入时 500Ω。 |
| 模拟端子 | AO1-GND | 模拟量输出端子 1 | 输出电压范围:0V-10V 输出电流范围:0mA-20mA, 4-20mA(P5-23 可选择) AO1 输出电压和电流选择由 J3 决定。 |
| 模拟端子 | AO2-GND | 模拟量输出端子 2 | 输出电压范围:0V-10V (BDM38 仅输出电压,主控板上的 J1 跳线帽至 AO2 位置) 输出电流范围:0mA-20mA, 4-20mA(P5-23 可选择) 注意:BDM38 的 AO2 只能输出 0-10V,无电流输出功能。 BDM42T 的 AO2 可输出 0-10V 或者 0-20mA,由 J1 选择。 |
| 数字输入 | X1- COM | 数字输入 1 | HDI(X5)除有 X1-X4 的特点外,还可作为高速脉冲输入通道。 最高输入频率:50kHz 1、输入阻抗:1kΩ 2、电平输入时电压范围:5V-30V |
| 数字输入 | X2- COM | 数字输入 2 | |
| 数字输入 | X3- COM | 数字输入 3 | |
| 数字输入 | X4- COM | 数字输入 4 | |
| 数字输入 | HDI- COM (X5 端子) | 数字输入 5 高速脉冲输入端子 | |
| 通讯 | A+ B- | RS485 通讯 | A+为 485 通讯差分信号正输入,B-为差分信号负输入 |
| 数字输出 | Y1- COM | 集电极开路输出 | 当作为集电极开路输出端子(BDM38 隔离型主控板上的 J1 跳线帽至 AO2 位置) |
| 数字输出 | HDO- COM | 高速脉冲输出 | 受功能码 P5-00“HDO 端子输出方式选择”约束 当作为高速脉冲输出,最高频率到 50kHz; 当作为集电极开路输出,与 Y1 规格一样。 |
| 数字输出 | K1A-K1B-K1C | 继电器 1 端子 | 触点描述: A:公共点 B:常闭点 C:常开点 触点驱动能力: AC250V,3A,COSø=0.4。 DC 30V,1A |
| 数字输出 | K2A-K2B-K2C | 继电器 2 端子 |
10.3 通讯数据地址定义
SK600 系列变频器支持 Modbus、CANopen、CANlink、Profibus-DP 四种通讯协议,用户可编程卡和点对点通讯属于 CANlink 协议的衍生,上位机通过这些通讯协议可以实现对变频器的控制、监视及功能参数修改查看操作。
SK600 通讯数据可分为功能码数据、非功能码数据,后者包括运行命令、运行状态、运行参数、告警信息等。
10.4 SK600 功能码数据
功能码数据为变频器的重要设置参数,SK600 有 P 组和 A 组功能参数,参数群组如下:
| SK600 功能码数据 | |
|---|---|
| P 组(可读写) | P0、P1、P2、P3、P4、P5、P6、P7、P8、P9、PA、PB、PC、PD、PE、PF |
| A 组(可读写) | A0、A1、A2、A3、A4、A5、A6、A7、A8、A9、AA、AB、AC、AD、AE、AF |
功能码数据通讯地址定义如下:
- 当为通讯读取功能码数据时: 对于 P0-PF、A0-AF 组功能码数据,其通讯地址高十六位直接为功能组编号,低十六位直接为功能码在功能组中序号,举例如下: P0-16 功能参数,其通讯地址为 P010H,其中 P0H 代表 P0 组功能参数,10H 代表功能组中序号 16 的十六进制数据格式。 AC-08 功能参数,其通讯地址为 AC08,其中 ACH 代表 AC 组功能参数,08H 代表功能码在功能组中序号 8 的十六进制数据格式。
- 当为通讯写入功能码数据时: 对于 P0-PF 组功能码数据,其通讯地址高十六位,根据是否写入 EEPROM,区分为 00-0F 或 P0-PF,低十六位直接为功能码在功能组中序号,举例如下: 写功能在参数 P0-16: 不需要写入 EEPROM 时,其通讯地址为 0010H。 需要写入 EEPROM 时,其通讯地址为 P010H。 对于 A0-AF 组功能码数据,其通讯地址高十六位,根据是否需要写入 EEPROM,区分为 10-4F 或 A0-AF,低十六位直接为功能码在功能组中序号,举例如下: 写功能参数 AC-08: 不需要写入 EEPROM 时,其通讯地址为 4C08H。 需要写入 EEPROM 时,其通讯地址为 AC08H。
10.5 SK600 非功能码数据
| SK600 非功能码数据 | |
|---|---|
| 状态数据(可读) | U 组监视参数、变频器故障描述、变频器运行状态 |
| 控制参数(可写) | 控制命令、通讯设定值、数字输出端子控制、模拟输出 AO1 控制、模拟输出 AO2 控制、高速脉冲(FMP)输出控制、参数初始化 |
- 状态数据:
状态数据分为 U 组监视参数、变频器故障描述、变频器运行状态。
U 组参数监视参数:
U 组监视数据描述见第五章、第六章相关描述,其地址定义如下:
U0-UF,其通讯地址高十六位为 70~7F,低十六位为监视参数在组中的序号,举例如下:
U0-11,其通讯地址为 700BH。
变频器故障描述:
通讯读取变频器故障时,通讯地址固定为 8000H,上位机通过读取该地址数据,可以获取当前变频器故障代码,故障代码描述见第五章 P9-14 功能码中定义。
变频器运行状态:
通讯读取变频器运行状态时,通讯地址因定为 3000H,上位机通过读取该地址数据,可以获取当前变频器运行状态信息,定义如下:
变频器运行状态通讯地址 读取状态字定义 3000H 1:正转运行
2:反转运行
3:停机 - 控制参数:
控制参数分为控制命令、数字输出端子控制、模拟输出 AO1 控制、模拟输出 AO2 控制、高速脉冲(FMP)输出控制。
控制命令:
在 P0-02(命令源)选择为 2:通讯控制时,上位机通过该通讯地址,可以实现对变频器的启停等相关命令控制,控制命令定义如下:
控制命令通讯地址 命令功能 2000H 1:正转运行
2:反转运行
3:正转点动
4:反转点动
5:自由停机
6:减速停机
7:故障复位
通讯设定值:
通讯设定值主要用户 SK600 中频率源、转矩上限源、VF 分离电压源、PID 给定源、PID 反馈源等选择为通讯给定时的给定数据,其通讯地址为 1000H,上位机设定该通讯地址值时,其数据范围为-10000~10000,对应相对给定值-100.00%-100.00%。
数字输出端子控制: 当数字输出端子功能选择为 20:通讯控制时,上位机通过该通讯地址,可以实现对变频器数字输出端子的控制,定义如下:
| 数字输出端子控制通讯地址 | 命令内容 |
|---|---|
| 2001H | BiT0:DO1 输出控制 BiT1:DO2 输出控制 BiT2:RELAY1 输出控制 BiT3:RELAY2 输出控制 BiT4:FMR 输出控制 BiT5:VDO1 BiT6:VDO2 BiT7:VDO3 BiT8:VDO4 BiT9:VDO5 |
模拟量输出 AO1、AO2,高速脉冲输出 FMP 控制:
当模拟量输出 AO1、AO2,高速脉冲输出 FMP 输出功能选择为 12:通讯设定时,上位机通过该通讯地址,可以实现对变频器模拟量、高速脉冲输出的控制,定义如下:
| 输出控制通讯地址 | 命令内容 |
|---|---|
| AO1 2002H | 0~7FFF 表示 0%~100% |
| AO2 2003H | |
| FMP 2004H |
参数初始化: 当需要通过上位机实现对变频器的参数初始化操作时,需要使用该功能。 如果 PP-00(用户密码)不为 0,则首先需要通过进行密码校验,校验通过后,在 30 秒后,上位机进行参数初始化操作。 通讯进行用户密码校验的通讯地址为 1F00H,直接将正确的用户密码写入该地址,则可以完成密码校验。 通讯进行参数初始化的地址为 1F01H,其数据内容定义如下:
| 参数初始化通讯地址 | 命令功能 |
|---|---|
| 1F01H | 1:恢复出厂参数 2:清除记录信息 4:恢复用户备份参数 501:备份用户当前参数 |
11.Modbus 通讯协议
SK600 系列变频器提供 RS485 通信接口,并支持 Modbus-RTU 通讯协议。用户可通过计算机或 PLC 实现集中控制,通过该通讯协议设定变频器运行命令,修改或读取功能码参数,读取变频器的工作状态及故障信息等。
11.1 协议内容
该串行通信协议定义了串行通信中传输的信息内容及使用格式。其中包括:主机轮询(或广播)格式;主机的编码方法,内容包括:要求动作的功能码,传输数据和错误校验等。从机的响应也是采用相同的结构,内容包括:动作确认,返回数据和错误校验等。如果从机在接收信息时发生错误,或不能完成主机要求的动作,它将组织一个故障信息作为响应反馈给主机。
应用方式: 变频器接入具备 RS485 总线的“单主多从”PC/PLC 控制网络,作为通讯从机。
总线结构:
- 拓扑结构:单主机多从机系统。网络中每一个通讯设备都有一个唯一的从站地址,其中有一个设备作为通讯主机(常为平 PC 上位机、PLC、HMI 等),主机发动通讯,对从机进行参数读或写操作,其它设备在为通讯从机,响应主机对本机的询问或通讯操作。在同一时刻只能有一个设备发送数据,而其他设备处于接收状态。 从机地址的设定范围为 1~247,0 为广播通信地址。网络中的从机地址必须是唯一的。
- 通讯传输方式:异步串行,半双工传输方式。数据在串行异步通信过程中,是以报文的形式,一次发送一帧数据,MODBUS-RTU 协议中约定,当通讯数据线上无数据的空闲时间大于 3.5Byte 的传输时间,表示新的一个通讯帧的起始。 主站发送 1 从站应答 1 主站发送 2 从站应答 2 大于 3.5Byte 数据帧 大于 3.5Byte 数据帧 传输时间 传输时间
SK600 系列变频器内置的通信协议是 Modbus-RTU 从机通信协议,可响应主机的“查询/命令”,或根据主机的“查询/命令”做出相应的动作,并通讯数据应答。 主机可以是指个人计算机(PC),工业控制设备或可编程逻辑控制器(PLC)等,主机既能对某个从机单独进行通信,也能对所有下位从机发布广播信息。对于主机的单独访问“查询/命令”,被访问从机要返回一个应答帧频;对于主机发出的广播信息,从机无需反馈响应给主机。
通讯资料结构: SK600 系列变频器的 Modbus 协议通讯数据格式如下,变频器只支持 Word 型参数的读或写。对应的通讯读操作命令为 Ox03;写操作命令为 Ox06,不支持字节或位的读写操作:
3.5Byte 1Byte 1Byte 2Byte 1Byte 2Byte 主站读命令帧
理论上,上位机可以一次读取连续的几个功能码(即其中 n 最大可达 12 个),但要注意不能跨过本功能码组的最后一个功能码,否则会答复出错。
3.5Byte 1Byte 1Byte 1Byte (2n)Byte 2Byte 从站读应答帧 3.5Byte 1Byte 1Byte 2Byte 2Byte 2Byte 主站写命令帧 3.5Byte 1Byte 1Byte 2Byte 2Byte 2Byte 从站写应答帧 若从机检测到通讯帧错误,或其他原因导致的读写不成功,会答复错误帧。 3.5Byte 1Byte 1Byte 1Byte 2Byte 从站读应答错误帧 错误类型: 01:命令码错误 02:地址错误 3.5Byte 1Byte 1Byte 1Byte 2Byte 03:数据错误 04:命令无法处理 从站写应答错误帧
数据帧字段说明:
| 字段 | 说明 |
|---|---|
| 帧头 START | 大于 3.5 个字符传输时间的空闲 |
| 从机地址 ADR | 通讯地址范围:1-247; 0=广播地址 |
| 命令码 CMD | 03:读从机参数;06:写从机参数 |
| 功能码地址 H | 变频器内部的参数地址,16 进制表示;分为功能码型和非功能码型(如运行状态参数、运行命令等)参数等,详见地址定义。 传送时,高字节在前,低字节在后 |
| 功能码地址 L | |
| 功能码个数 H | 本帧读取的功能码个数,若为 1 表示读取 1 个功能码。传送时,高字节在前,低字节在后。 本协议一次只能改写 1 个功能码,没有该字段。 |
| 功能码个数 L | |
| 数据 H | 应答的数据,或特写入的数据,传送时,高字节在前,低字节在后。 |
| 数据 L | |
| CRC CHK 高位 | 检测值为 CRC16 校验值。传送时,高字节在前,低字节在后。计算方法详见本节 CRC 校验的说明。 |
| CRC CHK 低位 | |
| END | 3.5 个字符时间 |
11.2 CMD校验方式 :
校验方式——CRC 校验方式:CRC(Cyclical Redundancy Check)使用 RTU 帧格式,消息包括了基于 CRC 方法的错误检测域。CRC 域检测了整个消息的内容。CRC 域是两个字节,包含 16 位的二进制值。它由传输设备计算后加入到消息中。接收设备重新计算收到消息 CRC,并与接收到的 CRC 域中的值比较,如果两个 CRC 值不相等,则说明传输有错误。
CRC 是先存入 0xFFFF,然后调用一个过程将消息中连续的 8 位字节与当前寄存器中的值进行处理。仅每个字符中的 8Bit 数据对 CRC 有效,起始位和停止位以及奇偶校验位均无效。
CRC 产生过程中,每个 8 位字符都单独和寄存器内容相异或(XOR),结果向最低有效位方向移动,最高有效位以 0 填充。LSB 被提取出来检测,如果 LSB 为 1,寄存器单独和预置的值相异或,如果 LSB 为 0,则不进行。整个过程要重复 8 次。在最后一位(第 8 位)完成后,下一个 8 位字节又单独和寄存器的当前值相异或。最终寄存器中的值,是消息中所有的字节都执行之后的 CRC 值。
CRC 添加到消息中时,低字节先加入,然后高字节。 CRC 简单函数如下:
unsigned int crc_chk_value(unsigned char *data_value,unsigned char length){
unsigned int crc_value=0xFFFF;
int i;
while(length--) {
crc_value^=*data_value++;
for(i=0;i<8;i++) {
if(crc_value&0x0001)
{
crc_value = (crc_value >> 1)^0xa001;
}
else
{
crc_value=crc_value>>1;
}
}
}
return(crc_value);
}
11.3通信参数的地址定义
- 读写功能码参数(有些功能码是不能更改的,只供厂家使用或监视使用):
- 功能码参数地址标示规则:以功能码组号和标号为参数地址表示规则:
- 高位字节: P0-PF(P 组)、A0-AF(A 组)、70-7F(U 组)
- 低位字节:00-FF
- 例如:若要范围功能码 P3-12,则功能码的访问地址表示为 0×P30C;
- 注意:
- PF 组:既不可读取参数,也不可更改参数;
- U 组:只可读取,不可更改参数。
- 有些参数在变频器处于运行状态时,不可更改;有些参数不论变频器处于何种状态,均不可更改;更改功能码参数,还要注意参数的范围,单位,及相关说明。
- 功能码组号 通讯访问地址 通讯修改 RAM 中功能码地址:
- P0~PE 组:0×F000~0×FEFF 0×0000~0×0EFF
- A0~AC 组:0×A000~0×ACFF 0×4000~0×4CFF
- U0 组:0×7000~0×70FF
- 注意:由于 EEPROM 频繁被存储,会减少 EEPROM 的使用寿命,所以,有些功能码在通讯的模式下,无须存储,只要更改 RAM 中的值就可以了。
- 如果为 P 组参数,要实现该功能,只要把该功能码地址的高位 F 变成 0 就可以实现。
- 如果为 A 组参数,要实现该功能,只要把该功能码地址的高位 A 变成 4 就可以实现。
- 相应功能码地址表示如下:
- 高位字节:00-0F(P 组)、40-4F(A 组)
- 低位字节:00-FF
- 如:
- 功能码 P3-12 不存储到 EEPROM 中,地址表示为 030C;
- 功能码 A0-05 不存储到 EEPROM 中,地址表示为 4005;
- 该地址表示只能做写 RAM,不能做读的动作,读时,为无效地址。
- 对于所有参数,也可以使用命令码 07H 来实现该功能。
- 功能码参数地址标示规则:以功能码组号和标号为参数地址表示规则:
- 停机/运行参数部分:
参数地址 参数描述 参数地址 参数描述 1000 *通信设定值(十进制) -10000-10000 1010 PID 设置 1001 运行频率 1011 PID 反馈 1002 母线电压 1012 PLC 步骤 1003 输出电压 1013 PULSE 输入脉冲频率,单位 0.01kHz 1004 输出电流 1014 反馈速度,单位 0.1Hz 1005 输出功率 1015 剩余运行时间 1006 输出转矩 1016 AI1 校正前电压 1007 运行速度 1017 AI2 校正前电压 1008 DI 输入标志 1018 AI3 校正前电压 1009 DO 输出标志 1019 线速度 100A AI1 电压 101A 当前上电时间 100B AI2 电压 101B 当前运行时间 100C AI3 电压 101C PULSE 输入脉冲频率,单位 1Hz 100D 计数值输入 101D 通讯设定值 100E 长度值输入 101E 实际反馈速度 100F 负载速度 101F 主频率 X 显示 1020 辅频率 Y 显示 - 注意:
- 通信设定值是相对值的百分数,10000 对应 100.00%,-10000 对应-100.00%。
- 对频率量纲的数据,该百分比是相对最大频率(P0-10)的百分数;对转矩量纲的数据,该百分比是 P2-10、A2-48、A3-48、A4-48(转矩上限数字设定,分别对应第一、二、三、四电机)。
- 注意:
- 控制命令输入到变频器:(只写)
命令字地址 命令功能 2000 0001:正转运行
0002:反转运行
0003:正转点动
0004:反转点动
0005:自由停机
0006:减速停机
0007:故障复位 - 读取变频器状态:(只读)
状态字地址 状态字功能 3000 0001:正转运行
0002:反转运行
0003:停机 - 参数锁定密码校验:(如果返回为 8888H,即表示密码校验通过)
密码地址 输入密码的内容 1F00 ***** - 数字输出端子控制:(只写)
命令地址 命令内容 2001 BIT0:DO1 输出控制
BIT1:DO2 输出控制
BIT2:RELAY1 输出控制
BIT3:RELAY2 输出控制
BIT4:FMR 输出控制
BIT5:VDO1
BIT6:VDO2
BIT7:VDO3
BIT8:VDO4
BIT9:VDO5 - 模拟输出 AO1 控制:(只写)
命令地址 命令内容 2002 0~7FFF 表示 0%~100% - 模拟输出 AO2 控制:(只写)
命令地址 命令内容 2003 0~7FFF 表示 0%~100% - 脉冲(PULSE)输出控制:(只写)
命令地址 命令内容 2004 0~7FFF 表示 0%~100% - 变频器故障描述:
变频器故障地址 变频器故障信息 8000 0000:无故障
0001:保留
0002:加速过电流
0003:减速过电流
0004:恒速过电流
0005:加速过电压
0006:减速过电压
0007:恒速过电压
0008:缓冲电阻过载故障
0009:欠压故障
000A:变频器过载
000B:电机过载
000C:输入缺相
000D:输出缺相
000E:模块过热
000F:外部故障
0010:通讯异常
0011:接触器异常
0012:电流检测故障
0013:电机调谐故障
0014:编码器/PG 卡故障
0015:参数读写异常
0016:变频器硬件故障
0017:电机对地短路故障
0018:保留
0019:保留
001A:运行时间到达
001B: 用户自定义故障 1
001C: 用户自定义故障 2
001D: 上电时间到达
001E:掉载
001F:运行时 PID 反馈丢失
0028:快速限流超时故障
0029:运行时切换电机故障
002A: 速度偏差过大
002B:电机超速度
002D:电机过温
005A:编码器线数设定错误
005B:未接编码器
005C:初始位置错误
005E:速度反馈错误 - PD 组通讯参数说明:
- Pd-00:
- 波特率:出厂值 6005
- 设定范围:
- 个位:MODUBS 波特率
- 0:300BPS
- 1:600BPS
- 2:1200BPS
- 3:2400BPS
- 4:4800BPS
- 5:9600BPS
- 6:19200BPS
- 7:38400BPS
- 8:57600BPS
- 9:115200BPS
- 个位:MODUBS 波特率
- 此参数用来设定上位机与变频器之间的数据传输速率。注意,上位机与变频器设定的波特率必须一致,否则,通讯无法进行。波特率越大,通讯速度越快。
- Pd-01:
- 数据格式:出厂值 0
- 设定范围:
- 0:无校验:数据格式<8,N,2>
- 1:偶检验:数据格式<8,E,1>
- 2:奇校验:数据格式<8,O,1>
- 3:无校验:数据格式<8-N-1>
- 上位机与变频器设定的数据格式必须一致,否则,通讯无法进行。
- Pd-02:
- 本机地址:出厂值 1
- 设定范围:1-247,0 为广播地址
- 当本机地址设定为 0 时,即为广播地址,实现上位机广播功能。
- 本机地址具有唯一性(除广播地址外),这是实现上位机与变频器点对点通讯的基础。
- Pd-03:
- 应答延时:出厂值 2ms
- 设定范围:0-20ms
- 应答延时:是指变频器数据接受结束到向上位机发送数据的中间间隔时间。如果应答延时小于系统处理时间,则应答延时以系统处理时间为准,如应答延时长于系统处理时间,则系统处理完数据后,要延迟等待,直到应答延迟时间到,才往上位机发送数据。
- Pd-04:
- 通讯超时时间:出厂值 0.0s
- 设定范围:0.0s(无效);0.1-60.0s
- 当该功能码设置为 0.0s 时,通讯超时时间参数无效。
- 当该功能码设置成有效值时,如果一次通讯与下一次通讯的间隔时间超出通讯超时时间,系统将报通讯故障错误(Err16)。通常情况下,都将其设置成无效。如果在连续通讯的系统中,设置次参数,可以监视通讯状况。
- Pd-05:
- 通讯协议选择:出厂值 0
- 设定范围:0:非标准的 Modbus 协议;1:标准的 Modbus 协议
- Pd-05=1:选择标准的 Modbus 协议。
- Pd-05=0:读命令时,从机返回字节数比标准的 Modbus 协议多一个字节,具体参见本协议“5 通讯资料结构”部分。
- Fd-06:
- 通讯读取电流分辨率:出厂值 0
- 设定范围:0:0.01A;1:0.1A
- 用来确定通讯读取输出电流时,电流值的输出单位。
- Pd-00: